İki Odalı Dış Sofalı Türk Evi’nin Anadolu Kökeni Üzerine: Frigya Vadisi’nden Bir Kesit
Doç. Dr. Alev Erarslan
Türk Evi plan tipi sınıflandırmasında “sofa” öğesini, planı oluşturan ana arketip olarak kabul eden ilk araştırmacı ünlü mimar Sedat Hakkı Eldem’dir. Eldem “Türk Evi Plan Tipleri” (1955), adlı ünlü çalışmasında “sofa” öğesine bağlı kalarak bir tipoloji oluşturmuş ve sofasız, dış sofalı, iç sofalı ve orta sofalı olmak üzere 4 ana tip ortaya koymuştur (Eldem 1955: 24). Eldem bu ana tipleri de sofasız tip hariç, oda sayısı, eyvan ve sofa şekline göre bazı alt tiplere ayırmıştır. Eldem’in tipolojisinde sofa, Türk evinin değişmez bir öğesi olarak karşımıza çıkar. Geleneksel Türk evinin en önemli karakteristiği olan sofa, odalar arası ilişkilerin sağlandığı ortak bir mekandır. Bütün oda kapıları sofaya açılır. Sofa bir dolaşım alanı olmakla birlikte aynı zamanda bir oturma ve toplanma alanıdır. Eldem sofanın yörelere göre “hayat, sergah, çardak, yazlık, divanhane, hanay” gibi farklı adlarla anıldığını da belirtir (Eldem 1954: 16).
Eldem’in tipolojisinde Türk evi plan şemasının sofasız tipten bir sonraki aşamasını oluşturan dış sofalı plan tipi en basit haliyle, bir oda ya da oda sırası ile önündeki sofadan ibarettir (Eldem 1955: 24, 33). Bu tipte oda sayısı tek, iki ya da üç olabilir. Oda/odaların önünde uzanan sofa ise sokak, bahçe ya da avluya bakan ahşap direkli/sütunlu açık bir bölümdür. Böylece sofa bir ön sofa vaziyetinde olup oda ya da odalar sofanın gerisinde bulunur. Sofa, odalar arasındaki ilişkiyi sağlayan ortak alan olup evin tek dağılım mekanıdır. Bu tip sıra odalı, köşe sofalı, üç tarafı odalı olmak üzere bazı alt tiplere ayrılır (Eldem 1955: 33-34).
Dış sofalı 2 ya da 3 odadan oluşan sıra odalı tipte odalar açık sofanın gerisinde yan yana sıralanmış olup odadan odaya geçiş yoktur. Her oda yatma, oturma, yemek pişirme, yemek yeme ve yıkanma gibi bütün gereksinimler için kullanılır. Oda/odaların önündeki direklikli/sütunlu sofa ise bir hizmet ve ortak kullanım alanıdır. Gündelik yaşam odaların önündeki bu mekanda (sofa) geçer.
2 ya da 3 odadan oluşan sıra odalı dış sofalı tip, tek ya da 2 katlı olabilir. 2 katlı örneklerde alt kat ahırdır. Üst katta ise yan yana 2 ya da 3 oda ile bu odaların önündeki açık bir direklik biçimindeki sofa bulunur. Sofaya sokak ya da avludan bir merdivenle ulaşılır.
Aynı tipin tek katlı örneklerinde ise odaların önünde taş subasman ile yerden yükseltilmiş sofanın bir ya da iki yanında yanak duvarları (antea) bulunur. Yapının konut, ahır ya da avlu gibi başka bir yapıya yaslandırılması durumunda ise sofanın bu yöndeki yanak duvarını (antea) yaslandığı yapı oluşturur. Tek katlı örneklerde sofaya, yapının merkezine yakın noktada konumlandırılmış birkaç basamak ile ulaşılır. Tek katlı 2 odalı örneklerde oda ölçüleri farklı iken 2 katlı 2 odalı dış sofalı tipte odalar farklı büyüklüklerde olabilir. Odaların pencereleri ise sofaya açılır.
Bu makalede 2 odalı dış sofalı Türk evi olarak bilinen plan tipinin, Frigya vadisinin Dağlık Frigya olarak bilinen bölümünün günümüzde kapladığı alan olan Eskişehir Seyitgazi ve Afyon İhsaniye ilçelerinin köylerini kapsayan alandaki örnekleri üzerinden, bu tipin Anadolu’nun tarihsel katmanlarındaki öncülleri arasındaki benzerlik ortaya konulmaya çalışılacaktır.
Bölgenin Tarihi
Adını bir Trak boyu olan Frigler’den alan Frigya vadisi Afyonkarahisar’da merkez, İhsaniye, İscehisar ve Bayat ilçelerinin tamamı ile Bolvadin ve Emirdağ ilçelerinin bir kısmını, Eskişehir’de Seyitgazi ve Han ilçelerini, Kütahya’da ise merkez ve Tavşanlı ilçelerinin bir bölümünü kapsamaktadır (Aşılıoğlu, Memlük 2010: 187).
Klasik Frigya genel olarak doğuda Kappadokia, sonraları Galatia, güneyde Lykaonia, Pisidia bölgeleri, Kabalis, Milyas ve Kibyratis yöreleri; batıda Mysia, Lydia, Karia; kuzeyde ise Bithynia ve Paphlagonia bölgeleriyle komşudur (Sevin 2007: 195). Bölgenin kuzeybatısı Küçük Frigya ya da Frigya Epiktetos, doğusu Magna Frigya, güneybatısında Göller Bölgesi’nin kuzey kesiminde uzanan vadi bölümü Frigya Paroreios, güneydoğusu ise Frigya Garsauritis olarak adlandırılır (Sevin 2007: 196-198).
Küçük Phrygia Epiktetos sınırları içinde yer alan dağlık bölge Dağlık Frigya olarak adlandırılır (Haspel 1971: 20). Bölgenin merkezinde Türkmen Dağı silsilesi bulunur (Resim 1). Bölgenin doğusu Eskişehir Seyitgazi, güney ucu Afyonkarahisar ili İhsaniye sınırları içindeki Köhnüş vadisi, batısı Kütahya Sabuncupınar köyü, kuzeyi ise Eskişehir merkeze bağlı Gökçekısık köyü çevresini kapsar (Tüfekçi-Sivas 1999: 5). Afyonkarahisar ve Eskişehir illeri bölgenin önemli şehirleridir. Bunlardan Afyon’daki (Akronio) Kusura ve Karacaahmet höyükleri ile Burhaniye Kaklık mezarlıkları bölgenin Erken Tunç dönemine ilişkin bilgiler sunar. Hitit İmparatorluk döneminde (M.Ö.1500-1200) ise Hititler’e baş kaldıran Arzava Krallığı’na II.Murşili’nin seferler düzenlemesiyle Afyon önem kazanır. IV. Tuthaliya’dan sonra sona eren 500 yıllık Hitit egemenliğinden sonra M.Ö. 8. yüzyıldan başlayarak bölgeye gelen Frigler’in kültür alanına girer. Bölgedeki Seydiler, Ayazini, Göynüs Vadisi ve Döğer çevresinde Friglere ait kaya anıtları ve yerleşimleri bulunur. Afyonkarahisar’ın 35 km kuzeyinde bulunan İhsaniye ilçesinde ise bu dönemin önemli yerleşimleri Döğer, Ayazini, Kayıhan, Kapıkayalar yerleşimleri ve Üçlerkayası ile Kayıhan, Göynüş vadisinde Aslantaş, Yılantaş, Maltaş, Kumcaboğazı, Aslanakaya, Kapıkaya I ve II’dir.
M.Ö. 6. yüzyıl ortalarından başlayarak bölgede sırasıyla Persler ve Hellenistik dönem hüküm sürer. Bölgede yaklaşık 200 yıl süren Hellenistik dönemde Afyon’un güneyinde bulunan Apameia güney Frigya’nın, kuzeydeki Synnada kenti ise kuzey Frigya’nın merkezi konumundadır. M.Ö. 30 yıllarından başlayarak bölge Roma yönetimi altına girer ve yeni Roma kentleri kurulur. Amorium (Hisar köyü), Docimeia (İscehisar ilçesi) ve Prymnessus (Süğlün kasabası) önemli Roma şehirleridir. Bizans Dönemi’nde ise Amorium kenti önem kazanır ve Frigya, ikiye bölünerek bir bölümü Galatia’ya bağlanırken öteki bölümü ise Frigya Salutaris olarak kalır. Roma ve Bizans dönemlerinde şifalı Frigya topraklarında tüf kaya kütleleri oyularak Metropolis, Bin İnler, Onpazarcık, Ornas gibi yerleşim birimleri, Avdalaz, Demirli, Bayramaliler, Asar Kale gibi savunma mekânları, Selimiye, Alanören, Devrent, Elicek gibi mezar odaları, Kırkinler gibi dini mekanlar, Yedikapılar gibi yeraltı yerleşimleri meydana getirilmiştir (Aşılıoğlu, Memlük 2010: 190).
Afyonkarahisar ve çevresinde, 1275-1343 yılları arasında Anadolu Selçuklu Devleti veziri Sahip Ata’nın oğulları tarafından Sahipataoğulları Beyliği kurulmuştur. 1390 yılında ise bölge Yıldırım Beyazıt tarafından Osmanlı topraklarına katılmıştır. I. Dünya Savaşı sonrasında bütün batı Anadolu kentleri gibi Afyon da Yunanlılar tarafından istila edilir. 27 Ağustos 1922’de Büyük Taarruz sırasında işgalden kurtulur.
Frigya Vadisi’nin kuzeyinde bulunan Seyitgazi (Nakoleia) ise Eskişehir’in 4 km güneyinde yer alan küçük bir ilçesidir. Adını Seyyit Battal Gazi’den alan ilçeye bağlı 45 köy ve 2 belde bulunmaktadır. Eskişehir’in Seyitgazi ve Han ilçeleri sınırları içerisinde kalan Yazılıkaya Frig Vadisi’ndeki araştırmalar bölgede tarihin Paleolitik Çağ’a değin uzandığını ortaya koymaktadır. Bölgede erken Tunç çağına tarihlenen eski yerleşimler Küllüoba, Demircihöyük, Dorylaion (Şarhöyük), Midaion (Karahöyük), Pessinus (Ballıhisar), Çavlum Höyük, Orman Fidanlığı, Keçiçayırı ve Pessinus’tur. Bölge M.Ö. 15. yüzyılda Hitit etkisine girmiş, M.Ö. 1200’lü yıllarda bölgeye gelen Frigler ise Eskişehir çevresinde güçlü bir krallık kurmuşlardır. Antik Yazılıkaya kenti, Friglerin önemli dini merkezidir. Yerleşmede Frig kültürüne ait kale duvarları, yerleşim yerleri, kaya kabartmaları, kaya anıtları, su sarnıçları, sunak yerleri, karlıklar, kaya mezarları, basamaklı anıtlar, nişler ve antik yollar bulunur. Frig Krallığı’nın yıkılması ile bölge M.Ö. 546’da Pers istilasına dek Lidya egemenliği altında kalır. Roma döneminde Nacolea adını alan Seyitgazi bu dönemde önemli bir karakol haline gelir (Aşılıoğlu, Memlük 2010: 190). M.S. 395’ten sonra doğu Roma’nın (Bizans) elinde kalan yörede birçok Bizans kenti kurulmuştur.
Sonrasındaki Selçuklular Dönemi’nde ise Nacolea, Danışmentliler ile Selçuklu boyları tarafından fethedilmiştir. Beylikler döneminde Osmanlı ve Karamanoğulları denetiminde olan Seyitgazi, I. Murat zamanında Osmanlı topraklarına katılır. Kurtuluş Savaşı’na özel taburu ile katılan Seyitgazi, Yunan işgalinde kısmî hasar görür ve 1 Eylül 1922’de Türk ordusunun gelişiyle Cumhuriyet Türkiye’sine ilçe merkezi olarak katılır.
Bölgedeki 2 Odalı Dış Sofalı Evler
Çalışma kapsamı dahilinde Eskişehir Seyitgazi ve Afyon İhsaniye ilçelerinde yaklaşık 70’e yakın köy taranmış ve bölgede 2 tip 2 odalı dış sofalı plan tipine rastlanmıştır. Bu evler, odalar ve sofa olmak üzere 2 plan arketipinden oluşur. Planın ilk planimetrik elemanı olan odalar sofanın gerisinde yan yana yerleştirilmiştir. Planın karakteristiği olarak sofa, odaların önünde uzanan ahşap sütunlu bir direklik olup bir dış/ön sofa görevindedir. Evlerin odalarının açıldığı sofa yapılardaki tek dağılım alanıdır. Sofanın genişliği her zaman evin genişliğine eşit olup bazen tek bazen 2 yönde yan duvarlara (yanak duvarı/antae duvarı) sahiptir.
Yapılarda düz çatı ve alçak/yüksek kırma çatı olmak üzere 2 tip çatı kullanılmıştır. Sofanın üzeri çatının devamı olarak örtülüdür. Ahır katı üzerinde yükselen evler hariç öteki bütün örneklerde sofa, taş subasman ile yerden yükseltilmiştir. Kuzey-güney doğrultusunda yerleştirilmiş olan evlerin bazıları arazide ya da bir avlunun içinde tek başına serbest dururken bazıları avlu duvarına bitişik biçimde inşa edilmiştir. Yapıların duvarlarında ahşap destekli taş duvar inşa tekniği görülür. Duvarlarda kullanılan taş, moloz taş ya da kesme taş olup beyaz sıva ile sıvanmıştır. Bazı örneklerde ise çamur sıva kullanılmıştır. Hiçbir örnekte evin içinde tuvalet olmayıp tuvaletler daima evin dışındadır. Ancak odalardan birinin bir köşesindeki ahşap kapaklı alan banyo görevindedir. Bölgede, tek girişli ve ayrı girişli olmak üzere 2 tip 2 odalı dış sofalı konut planı görülür:
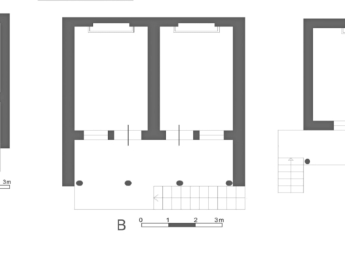
1) Tek girişli 2 odalı dış sofalı tip: Bu plan tipi, biri büyük öteki küçük yan yana 2 dikdörtgen odadan oluşur (Resim 2). Yapıya, küçük odanın ön uzun kenarının ortasındaki kapıdan ulaşılır. Bu küçük odadan bir iç kapı ile ana oda görevindeki büyük odaya geçilir. Bu oda evin yatma, oturma ve yemek yeme odası iken küçük oda eve giriş odası ve mutfak olarak kullanılır. Evin her 2 odasında da birer ocak bulunur. Odaların önünde ise ahşap direkli bir sofa uzanır (Resim 2, 3). Evin tek dolaşım alanı olan sofa aynı zamanda ek bir faaliyet alanıdır. Odaların tek ya da 2 tane olan pencereleri sofaya açılır. Sofa bazen tek bazen de 2 yandan, sofaya bir sınır oluşturan sağır yan duvarlara (yanak duvarı/antae duvarı) sahiptir. Bu tipin tek ve 2 katlı uygulamaları bulunur. Su basman üzerinde yükselen tek katlı yapılara, ahşap direkli sofaya açılan birkaç basamaklı bir merdiven ile ulaşılır (Resim 3).
Bu tipin 2 katlı örnekleri ise ahır katı üzerinde yükselir. Üst kata ahşap direklikli sofa ile bağlantılı bir merdiven ile ulaşılır (Resim 2B, 4, 5). Üst katta yine, bir büyük ana oda ile küçük giriş odası olmak üzere yan yana 2 oda bulunur. Yapıya küçük giriş odasındaki kapıdan girilir. Buradan bir iç kapı ile büyük odaya ulaşılır. Odaların önünde ise ahşap direklikli sofa bulunur (Resim 4, 5). Tek katlı uygulamalarda evlerin yan duvarları sağırken, 2 katlı örneklerde ana odanın biri sofaya açılan öteki yan cephede olmak üzere 2 penceresi vardır.
2) Ayrı girişli 2 odalı dış sofalı tip: Bu plan, hemen hemen aynı boyutlarda, yan yana 2 dikdörtgen odadan oluşur. Her 2 odanın da girişleri ayrı ayrı olup odalar arası iç bağlantı yoktur (Resim 6). Odaların önünde ise ahşap direklikli sofa uzanır (Resim 6, 7, 8, 9). Odalar evin tek dolaşım ve ek etkinlik alanı olan sofaya açılır. Odalardan biri oturma, yatma ve yemek yeme işlevine sahipken öteki yemek hazırlama ve depo mekanı (mutfak) rolüne sahiptir. Her 2 odanın duvarlarında da nişler bulunur. Ocak ise her 2 odada da, kapının karşısına gelen duvara açılmıştır (Resim 6, 10). Odaların sofaya açılan pencereleri olup pencere düzeninde her zaman bir simetri kaygısı görülmez (Resim 7, 8). Tek ve 2 katlı uygulamaları olan bu tipte de tek katlı evler taş subasman üzerinde yükselir. Eve, evin merkezinde bulunan ve doğrudan ahşap direkli sofaya açılan birkaç basamaklı bir merdiven ile ulaşılır (Resim 7, 8, 9). Tek katlı uygulamalarda yapı bazen yola bakar vaziyette tek başına serbest durumda konumlandırılmıştır (Resim 7, 9). Evin avlu duvarına ya da başka bir yapıya bitişik inşa edildiği durumlarda ise sofanın bir yanak duvarını (antae) avlu ya da bu yapı oluşturur (Resim 8).
Bu tipin 2 katlı örneklerinde de alt kat yine ahırdır (Resim 6 B-C, 11, 12). 2 katlı yapılar daha büyük boyutlu olup üst kata ahşap direklikli sofa ile bağlantılı bir merdiven ile ulaşılır. 2 katlı bazı uygulamalarda da sofa, 2 yandan tek ve 2 yanak duvarına (antae) sahiptir (Resim 6 B-C, 11, 12). Odaların sofaya bakan ön cephesinde genelde aynı boyutlarda birer pencere bulunur. Evlerin yan duvarlarında da bazen birer pencere vardır. 2 katlı örneklerin hepsi yola bakar vaziyette tek başına, serbest şekilde konumlandırılmıştır.
Tarihsel Örneklerle Karşılaştırma
Anadolu’nun tarihsel katmanlarındaki konutlar incelendiğinde, “tek ve ayrı girişli 2 odalı dış sofalı” tip olarak adlandırılan plan şemasının Neolitik Çağ’ın erken evrelerinden başlayarak kullanıldığı görülmektedir. Bu yerleşmelerden biri Antalya’nın Döşemealtı ilçesine bağlı olan Bademağacı’dır. Yerleşmenin erken Neolitik Çağ’a tarihlenen II. tabakasındaki tek odalı konut yapılarının yanında, biri büyük öteki küçük yan yana dikdörtgen şeklinde 2 odadan oluşan tek katlı bir ev bulunur (Resim 13 A). Yapıya asal yaşam odası/ana oda olan büyük odanın ön uzun kenarının merkezindeki kapı ile girilir. Buradan ulaşılan küçük oda ise depo ve yatak odası olarak kullanılmaktadır. Büyük odada, kapının karşısına gelen duvarda bir ocak bulunur (Duru, Umurtak 2010: 17). Yapı bu haliyle tek girişli 2 odalı dış sofalı tipin öncülerinden biridir.
Tek girişli 2 odalı dış sofalı plan tipinin Neolitik Dönem’deki bir başka örneği ile Ulucak Höyük’de karşılaşılır. İzmir-Ankara karayolu üzerinde, İzmir-Bornova ilçesine yaklaşık 14 km uzaklıkta bulunan yerleşmenin Neolitik tabakalarından biri olan Ulucak IV (M.Ö. 6.000-5.700)’te bulunan 13 nolu yapı tek katlı olup, biri büyük öteki küçük yan yana 2 dikdörtgen odadan oluşur (Resim 13 B). Kuzey-güney doğrultusunda yerleştirilmiş olan yapıya büyük odanın ön uzun kenarının ortasındaki kapıdan ulaşılır. Kapının karşısına gelen duvarda bir ocak bulunur. Ana oda karakterindeki büyük odadan, ince bir bölme duvarı ile oluşturulmuş küçük odaya ulaşılır (Derin 2005: 88-89). Yapı taş temel üzerine kerpiç duvarlı olup çatısı ahşap düz damdır. Çatı, yapının merkezine konulmuş 1 ahşap dikme/sütun ile desteklenmektedir (Derin 2005: 88). Bu durum yapının önünde bulunan dikme çukurundan kolayca gözlenir. Böylece yapının önünde, bölgedeki tek katlı ayrı girişli 2 odalı dış sofalı plan türünde olduğu gibi sığ bir sundurma/sofa oluşmaktadır.
Hacılar VI köyü tek girişli 2 odalı dış sofalı plan tipinin Geç Neolitik Çağ’da kullanıldığı bir başka yerleşmedir. Burada merkezi bir avluyu çeviren dikdörtgen tek odadan oluşan 1 ve 2 katlı konut yapılarından biri (Q5 nolu ev), yan yana biri büyük öteki küçük 2 odadan oluşmaktadır (Resim 13 C). Yerleşmedeki en büyük konut yapısı olan evin ana odası 10×5 metre, yan odası ise 3×2 metre boyutlarındadır (Mellart 1970: 18). Eve, büyük odanın öndeki uzun kenarının merkezindeki kapıdan ulaşılır. Yapıda kapının tam karşısındaki duvarda ise bir ocak bulunur. Yerleşmedeki yapıların iç duvarları boyunca, çatıyı ve üst katı taşıyan çok sayıda ahşap dikme dizilmiştir (Mellart 1970: 11, 16-17). Bu ahşap dikmelerin evlerin dışında kapı önlerinde de bulunması, bunların çatının saçağını taşıyan dikmeler olarak kullanıldığına dolayısıyla ev önlerinde ahşap direklikli sundurmaya/sofaya işaret etmektedir.
Tek girişli 2 odalı dış sofalı plan tipi Kültepe-Kaneş yerleşmesinde de kullanılmıştır. Yerleşmenin II. yapı katındaki tek katlı, düz damlı olan bir ev, içinde at nalı şeklinde bir ocak olan dikdörtgen şeklindeki büyük bir oda ile bunun yanında evin dış kapısının açıldığı daha küçük bir odadan oluşur (Resim 14 A). Ana oda olan büyük odaya ise bu küçük odadan geçilir (Özgüç 1986: 23).
Tek girişli 2 odalı dış sofalı plan tipi Urartu mimarlığında da sevilerek kullanılan bir plan modelidir. Karmir-Blur’da bir ön avlunun içerisinde bulanan konutlar biri büyük öteki küçük yan yana 2 dikdörtgen odadan oluşmakta olup yapılara avluya açılan küçük odadan girilmektedir (Resim 14 B). Bu küçük odadan bir iç kapı ile yanındaki daha büyük odaya (ana oda) ulaşılır.
Bölgede rastlanılan bir başka 2 odalı dış sofalı plan tipi ise ayrı girişli 2 odalı dış sofalı plandır. Hemen hemen aynı boyutlarda yan yana 2 dikdörtgen oda ve bu odaların önündeki ahşap direklikli sofadan oluşan bu plan tipinde her 2 odanın da girişleri ayrı ayrı olup odalar arası iç bağlantı yoktur. Bölgede tek ve 2 katlı uygulamaları bulunan bu tipin tek katlı örneklerine tarihsel Anadolu konut mimarlığında rastlanmaz. Ancak Kültepe-Kaneş yerleşmesi tabaka II’de, her birinin sokağa açılan ayrı girişleri olan yan yana 3 dikdörtgen odadan oluşan tek katlı bir ev -oda sayısı 3 olmakla birlikte- Anadolu’da ayrı girişli dış sofalı plan şemasının varlığını göstermesi açısından önemli bir örnektir (Resim 14 D).
Ayrı girişli 2 odalı dış sofalı plan şablonunun 2 katlı uygulamalarına ise Hitit ve Urartu mimarlığında sıkça rastlanılır. Hitit mimarlığında yaygın şekilde kullanılan bir plan olan “2 odalı ön avlulu tip” bu tipin bir avlu içerisinde uygulanmış formudur. Kültepe-Kaneş tabaka Ia-II-III’de, Büyük Krallık Çağı’nda ise Boğazköy Aşağı Kent’te yaygın olarak kullanılan bu plan şemasında yapılar, açık bir avluda 2 katlı olarak tasarlanmıştır. Bu açık avlu/bahçe bütün günlük etkinliğin gerçekleştirildiği bir işlik alanı olmanın yanı sıra yazın da oturma işlevine sahiptir. Yapıların alt katları ahır ve işlik olarak kullanılırken asal yaşam katı olan üst katta yan yana, ayrı ayrı girişleri olan eşit genişlikteki 2 dikdörtgen oda bulunur. Avlunun genişliği odaların genişliğine eşittir. Düz damlı bu yapıların üst kat odalarının önünde ise bölgedeki 2 katlı ayrı girişli 2 odalı dış sofalı tipte olduğu gibi, üzeri örtülü ahşap direkli/sütunlu bir balkon/sofa olup odalar buraya açılmaktadır (Resim 15) (Naumann 1998: 381, 384). Odalar arası bağlantıyı sağlayan bu alan ayrıca ev halkı için bir ek faaliyet alanı oluşturur (Yakar 2007: 155). Buraya, avludaki bir merdiven ile ulaşılır (Naumann 1998: 381, 384). Konutların daima sokağa göre yönlendirildiği bu plan Tahsin Özgüç’e göre, orta Anadolu kökenli yerel bir plan tipidir (Özgüç 1959: 28).
Bölgedeki ayrı girişli 2 odalı dış sofalı plan tipinin eş varyantı olan “2 odalı ön avlulu” plan şemasının kullanıldığı bir başka Anadolu uygarlığı da Uratular’dır. Urartu bölgesinde Giyimli, Gövelek, Ağaçlık, Eski Norgüh, Zernakitepe, Bastam ve Karmir-Blur başta olmak üzere çok geniş bir coğrafi alanda kullanılan bu konut planı, yine açık bir ön avlunun gerisindeki ayrı girişleri olan yan yana 2 odadan oluşur (Resim 14 C). Düz damlı bu evlerin kat sayısı hakkında araştırmacılar tarafından kesin bir görüş birliğine varılamamıştır. Kellner bu evlerin Boğazköy ve Kültepe-Kaneş’te olduğu gibi 2 katlı olduğunu ileri sürer (Kellner 1976: 39). Ancak bu planın tek katlı olduğunu düşünen araştırmacılar de bulunmaktadır (Martirosian 1964: 260; Tarhan, Sevin 1976-1977: 355). Zernakitepe ve Karmir-Blur’da yüzlerce konut yapısının bu plana göre kurgulanmış olması, bu planın Urartu krallığı tarafından benimsenen bir yapı programı olduğunu göstermektedir (Tarhan, Sevin 1976-1977: 357).
Sonuç
Görüldüğü gibi 2 odalı dış sofalı Türk evi olarak bilinen plan tipi ile bölgede bulunan tek ve ayrı girişli 2 odalı dış sofalı tip arasındaki mekansal kurgu temelde ortaktır. Her iki plan da ahşap direklikli bir sofa ile bunun gerisindeki yan yana konumlandırılmış 2 odadan oluşur. Eldem tarafından “Türk Evi” üst kimliği ile tanımlanan bu plan şablonunun kökleri Anadolu’nun en eski kültürel katmanlarına kadar inmektedir. Bu sonuç, geleneksel Türk evinin, Anadolu’nun yüzlerce yıllık kültürel birikiminin bir sentezi olduğu gerçeğini ortaya koymaktadır. Anadolu’nun tarihsel katmanlarına inen kırsal konut planları zaman içerisinde Türk evinin üzerinde temel belirleyici etken haline gelmiştir. Türklerin Anadolu’ya geldikten sonra burada karşılaştığı konut planları Anadolu-Türk evinin kökeni olarak gösterilebilir (Günay 1998: 33). Geleneksel Türk evi, Anadolu’da yüzyıllar boyunca süregelen kültürel yayılma, kültürel adaptasyon ve kültürel etkileşimin birlikte ortaya çıkardığı doğal bir sonuçtur.
Kaynaklar
- Aşılıoğlu, F.; Memlük, Y.; “Frig Vadisi Kültür Mirası Alanlarının Belirlenmesi ve Değerlendirilmesi”, Ankara Üniversitesi Çevrebilimleri Dergisi, S.2(2), 185-197, 2010.
- Aurance, O.; “Houses and Households in Modern Cafer Höyük (Euphrates valley, Malatya)”, Çaglar Boyunca Anadolu’da Yerleşim ve Konut Uluslararası Sempozyumu, 5-7 Haziran 1996, Ege Yayınları, Istanbul, 49-58, 1996.
- Derin, Z.; “The Neolithic Architecture of Ulucak Höyük”, How did farming reach Europe? BYZAS 2, (ed). Lichter, C.; Meriç, R.; Ege Yayınları, Istanbul, 85-94, 2005.
- Duru, R.; “Burdur Bölgesi Neolitik Çağ Mimarlığı ve Anadolu’daki Çağdaşları Arasındaki Konumu Hakkında”, ADALYA, S.I, 1-22, 1996.
- Duru, R.; Umurtak, G.; “Bademağacı Höyüğü’nde (Antalya) Yapılan Tarihöncesi Kazılar Sona Erdi-I”, Türkiye Seyahat Acentaları Birliği, TÜRSAB, S.306, 14-20, Aralık 2010.
- Eldem, S. H.; “Türk Evi Plan Tipleri”, İTÜ Mimarlık Fakültesi, İstanbul, 1955.
- Gilbert, A.; “Syro-Hittite Monumental Art and the Archaeology of Performance”, The Stone Reliefs at Carchemish and Zincirli in the Earlier First Millennium BCE, Walter de Gruyter, New York, 2011.
- Günay, R.; “Türk Ev Geleneği ve Safranbolu Evleri”, İstanbul, YEM Yayın, 1998.
- Haspels, C. H. E.; “The Highlands of Phrygia”, Sites and Monuments, New Jersey, Princeton University, 1971.
- Hawkins, J. D.; “Hattusa: Home to the Thousand Gods of Hatti”, (ed). G. J. Westenholz, Capital Cities, Jeusalem, 1991.
- Hodder, I.; Cessford, C.; “Daily Practice and Social Memory at Catalhoyuk”, American Antiquity, S.69(1), 17-40, 2004.
- Kazmaoğlu, M.; Tanyeli, U.; “Anadolu Konut Mimarisinde Bölgesel Farklılıklar”, YAPI, S.33, s.29-41, 1979/13, İstanbul.
- Kellner, H. J.; “Urartu: Ein Wiederentdeckter rivale Assyriens- Katalog der Ausstellung”, München, 1976.
- Klinhott, M.; “Megaron und Bit Hilani”, Wohnungsbau im Altertum, Collectif, Deutsches archäologisches Institut, Berlin, 62-71, 1978.
- Mellart, J.; “Excavations at Hacılar I”, The British Institute of Archaeology at Ankara, Edinburg, 1970.
- Martirosian, A. A.; “Armenia v Epokhu Bronzy I Rannego Zheleza/Armenia in Epoch of Bronze and Early Iron”, Erevan, 1964.
- Naumann, R.; “Eski Anadolu Mimarlığı”, Türk Tarih Kurumu, Ankara, 1998.
- Neve, P.; “Zur Entwicklung des hethitischen Wohnungsbaus in Boğazköy-Hattuša unter besonderer Berücksichtigung der in der Altstadt/Unterstadt erzielten Grabungsergebnisse”, Wohnungsbau im Altertum, Bericht über ein Kolloqium veranstaltet vom Architektur-Referat des Dt. Archäolog. Inst. mit Unterstützung der Stiftung Volkswagenwerk in Berlin vom 21. 11. bis 23. 11. 1978, Deutsches Archäologisches Institut, Berlin 1979, 47-61.
- Neve, P.; “Housing in Hattusha, the Capital of the Hitite Kingdom”, Housing and Settlement in Anatolia. A Historical Perspective, (ed). Sey, Y.; Türkiye Ekonomik ve Toplumsal Tarih Vakfı, İstanbul, 99-115, 1996.
- Özdoğan, M.; “Kulübeden Konuta: Mimarlıkta İlkler”, Housing and Settlement in Anatolia. A Historical Perspective, (ed). Sey, Y.; Türkiye Ekonomik ve Toplumsal Tarih Vakfı, İstanbul, 19-30, 1996.
- Özgüç, T.; “Kültepe-Kaniş. Asur Ticaret Kolonilerinin Merkezinde Yapılan Yeni Araştırmalar”, TTK, Ankara, 1959.
- Özgüç, T.; “The Art and Architecture of Ancient Kanish”, Anatolia, S.8, 27-48, 1966.
- Özgüç, T.; “Kültepe-Kanis II. Eski Yakındoğu’nun Ticaret Merkezinde Yeni Araştırmalar/ New Researches at the Trading Center of the Ancient Near East”, TTKY, Ankara, 1986.
- Özgüç, T.; “Karum Kanish as a City of International Trade”, International Symposium on Settlement and Housing in Anatolia through the Ages. 5-7 June 1996. Papers presented to the symposium, (ed). A. Boratav, Ege Yayınları, İstanbul, 321-335, 1999.
- Ragette, F.; “Architecture in Lebanon”, American University of Beirut, Beirut, 1974.
- Sevin, V.; “Anadolu’nun Tarihi Coğrafyası I”, Türk Tarih Kurumu, Ankara, 2007.
- Tarhan, T.; Sevin, V.; “Van Bölgesi’nde Urartu Araştırmaları (II). Konut Mimarlığı”, Anadolu Araştırmaları, S.IV-V, 347-361, 1976-1977.
- Thissen, L.; “The Neolithic-Chalcolithic Sequence in the SW Anatolian Lakes Region”, Documenta Praehistorica, S.XXXVII, 269-282, 2010.
- Tüfekçi-Sivas, T.; “Eskişehir-Afyonkarahisar-Kütahya İl Sınırları İçindeki Kaya Anıtları”, Anadolu Üniversitesi Yayınları, Eskişehir, 1999.
- Umurtak, G.; “A Building Type of the Burdur Region from the Neolithic Period”, Belleten, S.LXIV, 683-706, 2001.
- Umurtak, G.; “Understanding the Hacılar II Settlement”, ADALYA, S.XIV, 1-16, 2011.
- Yagi, K.; “Traditional Houses and Living Patterns in Syria”, Islamic Architecture and Urbanism, (ed). Germen, A.; King Faisal University, Dammam, 343-353, 1983.
- Yakar, J.; “Anadolu’nun Etnoarkeolojisi”, Homer Kitabevi, İstanbul, 2007.


















