Yangjiang Kültür Merkezi
Künye
Mimari Tasarım
Architectural Design & Research Institute of SCUT Co.,Ltd. + Yifang Design Group Co. Ltd.
Proje Yeri
Guangdong, Çin
Tasarım Ekibi
Jiang Fan, Huang Wenyao, He Shitie, Mo Zhaohui, Guo Yuanxiang, Lin Lianghong, Yi Cui, Li Kaixin, Tan Danping, Zeng Xiance, Xiao Pengfei, Yang Yi, Wang Renyu, Jiang Yaohui, Cen Hongjin, Du Jingjing, Mo Lili, Zeng Zhixiong, Li Xukai, Lin Jiayu
Toplam İnşaat Alanı
35 634 m2
Tamamlanma Tarihi
2023
Fotoğraflar
Xu Mian
Doğayla iç içe konumlanan, dağ ve denizin ruhunu mimarisine yansıtan SCUT. ve Yifang Design imzalı Yangjiang Kültür Merkezi, pasif tasarım stratejileri ve dinamik cephe dokusuyla geleneksel kamu yapısı anlayışını aşarak; kültürü sadece sergileyen değil, yaşatan, çoğaltan ve kamusal belleği doğayla birlikte inşa eden çağdaş bir toplumsal sahneye dönüşüyor.
Yangjiang kentinde, Moyang Gölü Parkı’nın kuzeyinde yer alan Yangjiang Kültür Merkezi, doğayla iç içe konumu ve geniş manzarasıyla dikkat çekiyor. Şehrin tarihi ve kültürüne dair birçok işlevi tek çatı altında toplayan yapı, çevresine canlılık katarken kentin yeni gelişen bölgesinde kültürel bir odak noktası haline geliyor. Yangjiang’ın en belirgin coğrafi karakteri olan “dağ ve denizin buluşması”, yapının mimari ifadesinde güçlü biçimde yansıtılıyor. Beyaz üst kütle, denizin metaforu olarak yükselirken, yeşil platform ise soyut dağ ve nehir unsurlarını simgeliyor. Doğayı temsil eden akıcı eğrilerle birleşen bu kütleler, yapıya yöresel bir kimlik kazandırıyor. Yapının cephe hatları ve sınırlarındaki incelikli biçimlendirme, farklı açılardan yaklaşıldığında kullanıcıya değişen mekansal deneyimler sunuyor. Güneş ışığıyla sürekli değişen, seramik çubuklarla örülmüş yüzey dokusu; uzaktan bakıldığında yelkenleri rüzgarla dalgalanan bir gemiyi andırıyor. Böylece Yangjiang’ın deniz kıyısı kimliği, mimaride kendine güvenli, zarif ve çağdaş bir dille hayat buluyor.
Merkezde, işlevsel entegrasyon ve ortak kullanıma dayalı bir tasarım stratejisi uygulanmış. Yedi farklı kurumun tek bir merkezi avlu etrafında örgütlendiği “yedi salon, tek yapı” formu, hem mekansal çeşitlilik sunuyor hem de hizmet akışını sadeleştirerek enerji tüketimini ve kamusal kaynak israfını azaltıyor. Bu bütüncül yaklaşım, Çin’deki orta ölçekli kentler için kültürel yapılar adına sürdürülebilir ve yoğunluk esaslı yeni bir mimari model öneriyor.
Tasarım, yalnızca anıtsal bir yapı oluşturmayı değil, topluma ait, yaşayan bir mekan yaratmayı amaçlıyor. Yapının açık alanları Moyang Gölü Parkı’na doğru uzanıyor; üzerindeki yumuşak eğimli çim alan, kafe, kitaplık ve dinlenme alanlarıyla zenginleştiriliyor. Parkla bütünleşen bu yeşil platform, yapıyı geleneksel, içe kapalı bir kamu binası olmaktan çıkarıp, her gün erişilebilen bir kamusal yaşam alanına dönüştürüyor.
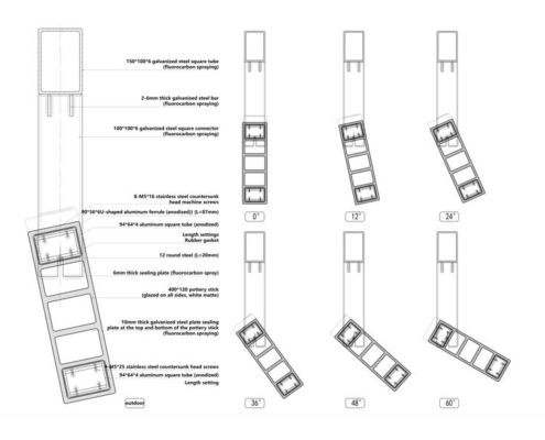
Sıcak, nemli ve güneşli subtropikal kıyı iklimine sahip bölgenin koşulları göz önüne alınarak, yapıda enerji tüketimini azaltmaya yönelik pasif tasarım stratejileri benimsenmiş. Cephede kullanılan dikey seramik güneş kırıcılar, yapının farklı yönlerdeki güneş açısı ve radyasyon yoğunluğuna göre parametrik olarak yerleştirildi. Bu sistem, ısı yalıtımı ve gün ışığı kontrolünü optimize ederken cepheye dinamik bir ritim kazandırıyor. Yapının genel yerleşimi ise doğal havalandırma ve serinletmeye imkan tanıyacak şekilde planlanmış. Havalandırmalı atriyum, rüzgar açıklıkları ve cephe pencereleri sayesinde mevsim geçişlerinde doğal havalandırma olarak kullanılabiliyor.





























