Xuebei Home
Künye
Mimari Tasarım
Cangbei Cultural Tourism · Republic Construction Architecture Studio
Proje Yeri
Huizhou, Guangdong, Çin
Tasarım Ekibi
Huang Yimin, Wang Yue, Yang Yaozhou
Şantiye Kontrolü
Xie Guobin
İşveren
Li Ailesi
Tamamlanma Tarihi
2025
Toplam İnşaat Alanı
116 m²
Fotoğraflar
Wang Ce
Huang Yimin tasarımı Xuebei Home, bir aile mirası olan eski duvarı koruyarak, geçirgen açıklıklar, kavisli çatı ve nefes alan pasif iklimlendirme stratejileriyle, geçmişle diyalog kuran çağdaş bir konut mimarisi sunuyor.
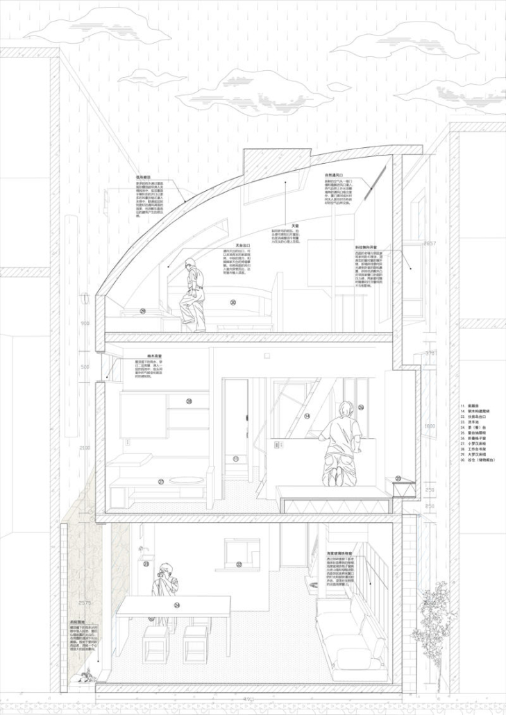
Xuebei Home, Batı Lingnan bölgesindeki Huizhou’nun Qiaodong Eski Yerleşimi’nde, farklı dönemlerde inşa edilmiş binalarla çevrili dar bir sokak dokusu içinde konumlanıyor. Proje, Li ailesinin miras kalan ve zamanla çökmüş bir evin yeniden yapımına odaklanıyor. Yapının bulunduğu düzensiz “P” şeklindeki arsa, yalnızca 44 metrekarelik bir alana sahip. Doğuda ve güneyde bitişik nizam duvarlar, batıda iki ucu kapatılmış dar bir geçit, kuzeyde ise kısmen kapanmış bir boşluk bulunuyor. Arazinin bu fiziksel kısıtları, ışık, havalandırma, görüş ve inşaat süreçlerini zorlaştıran temel etkenler arasında yer alıyor. Tüm bu sınırlamalara rağmen, proje alanı güçlü değerler taşıyor; Arsa, Li ailesinin hafızasında önemli bir yer tutuyor. Yıllara direnen 40 santimetre kalınlığındaki kerpiç duvar, hem mekansal hem duygusal bir taşıyıcı olarak bu belleğin fiziksel izini oluşturuyor. Tasarımın çıkış noktası, bu kısıtların içindeki potansiyeli ortaya çıkarmak olarak aktarılıyor.
Projenin ilk adımı, mevcut duvarın tamamen yıkılması yerine korunarak yeni yapının zeminini oluşturması olmuş. Yeni betonarme yapı, eski duvarın içine özenle yerleştirilerek ikisi arasında mekansal bir eşzamanlılık kurulmuş. Eski duvara yapılan kesitler ve içi boşaltma işlemleriyle oluşturulan açıklıklar ışığı, gölgeleri, dış manzarayı ve havayı içeri taşımış. Bu açıklıklar sadece ışık alan yüzeyler değil, aynı zamanda dışarının yeşil dokusunu, gökyüzünü ve sıkışmış yarık görüntülerini mekanın algısına dahil eden çerçeveler haline gelmiş. Böylece duvar, kapalı bir sınırdan çok, geçmiş ile bugün arasındaki geçirgen bir arayüze dönüşmüş.
Lingnan’ın sıcak ve nemli iklimine uyum sağlamak için pasif havalandırma stratejileri geliştirilmiş. Birinci katta gizli hava girişleri, üçüncü katta ise çatıya yerleştirilmiş çıkışlar tasarlanmış. Yükselen sıcak havanın oluşturduğu yığılma etkisiyle iç mekandaki hava yukarıdan atılıyor, aşağıdan daha serin hava çekiliyor. Bu sistem kapılar kapalıyken bile yapının doğal olarak hava değişimini sürdürmesine imkan veriyor, binanın nefes almasını sağlıyor. Modern ve hava geçirmez alüminyum doğramalar yerine geleneksel ahşap kapı ve pencerelerin seçilmesi, mekanın yumuşak dokusunu güçlendirirken doğal hava akışını desteklemiş.
Yüksek komşu duvarlarının yarattığı baskıyı azaltmak için çatının kavisli bir formda tasarlanması önemli bir karar olarak belirtiliyor. Bu eğrisel yüzey, beton kütleyi hafifleten bir etki yaratıyor, hem iç mekanda hem dış mekanda baskıyı azaltarak görüş çizgilerini yönlendiriyor. Üçüncü kattaki lohan sedirinin altında oturulduğunda ya da uzanıldığında, kavisin gökyüzüne doğru yükselen hareketi mekanın daha geniş algılanmasını sağlıyor. Çatı altındaki açıklıktan manzarayı izleme anı, yağmurun altına sığınma hissiyle birleşerek şiirsel bir mekansal deneyim oluşturuyor.
Mekansal düzenlemeler, insan ölçeği ve davranış biçimleriyle uyumlu olarak geliştirilmiş. Üçüncü kata çıkan dar merdiven, geleneksel konutlardaki bedensel tırmanma hissini geri getiriyor. Bu merdiven, geniş ve hızlı dolaşımı teşvik eden modern dairelerden farklı olarak mekanla fiziksel bir temas kurduruyor. Birinci kattan üçüncü kata uzanan sürekli kolon, üçüncü katta lohan sediri etrafında mekanın ruhsal merkezine dönüşüyor. Bu kütle, aile buluşmalarının, düşünme anlarının ve gökyüzüne bakışların odağını oluşturuyor.
Yapı malzemesi olarak ham beton tercih edilmiş. Eski ahşap kalıpların yeniden kullanımıyla beton yüzeylerdeki ağaç dokusu korunarak sıcak bir etki oluşturulmuş. Projenin 2021–2024 arasındaki yapım süreci, küçük ölçekte ve yüksek özelleştirme gerektiren bir yapım biçiminin güncel inşaat sektöründe karşılaştığı zorlukları da ortaya koymuş. Beklenmedik toprak katmanları, yağış kaynaklı gecikmeler ve usta bulma güçlüğü, mimarların sadece tasarımcı değil, aynı zamanda uygulama yöneticisi ve yerinde eğitmen rolünü de üstlenmelerine neden olmuş.
Beş yıla yakın süren süreç sonunda Xuebei Home, fiziksel bir “toprak parçası”ndan manevi bir “yuva”ya doğru uzanan bir dönüşümü temsil ediyor. Zamanın parçalılığı, geçirgenlik, nefes alan yapım teknikleri ve geleneksel mekansal arketiplerin çağdaş yorumlarıyla küçük ölçekli bir kasaba parselinde beklenmedik bir mekansal derinlik yaratıyor. Sonuç, kent içinde yankı uyandıran ve gündelik yaşamla ruhsallığı bir arada taşıyan bir “yer duygusu” üretimi olarak ortaya çıkıyor.




























松木圆柱-摄影:王策-495x400.jpg)
松木方柱-摄影:王策-495x400.jpg)










与补救施工(右)-@共和营造-495x400.jpg)

-▲工人打磨修复墙面(右)-@共和营造-495x400.jpg)












©Nobuyoshi Araki