WoodHub
Künye
Mimari Tasarımcı
C.F. Møller Architects
Peyzaj Tasarımı
C.F. Møller Architects
Proje Yeri
Odense, Danimarka
İşveren
Bygningsstyrelsen (Danimarka Yapı ve Gayrimenkul Ajansı)
Yüklenici
NCC
Statik ve Mühendislik Projesi
Artelia
Toplam İnşaat Alanı
36.500 m²
Tamamlanma Tarihi
2025
Fotoğraflar
Rasmus Hjortshøj
C.F. Møller Architects tarafından tasarlanan WoodHub, masif ahşap taşıyıcı sistemi mimari ifadenin merkezine yerleştirerek, düşük karbon ayak izine sahip büyük ölçekli bir kamu yapısının esnek ve geçirgen bir mekansal karakter ile kentsel bağlamla bütünleşmesine örnek oluşturuyor.
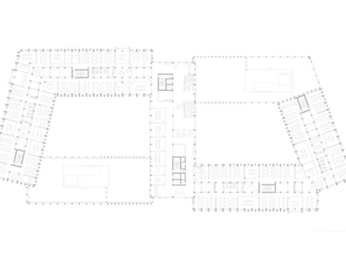
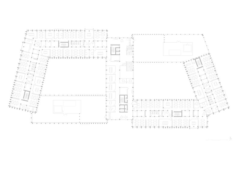
Odense kent merkezinde birden fazla kamu kurumunu tek çatı altında toplayan yeni ofis yapısı WoodHub, büyük ölçekli ahşap yapılaşma alanında öncü bir proje olmasının yanı sıra Danimarka’daki en büyük ahşap ofis binası olma özelliğini taşıyor. Yapı, iklim sorumluluğu gözetilerek tasarlanmış modern ve esnek bir çok kullanıcılı ofis ortamında toplam 1.600 kamu çalışanına ev sahipliği yapıyor. 31.000 metrekarelik masif ahşap taşıyıcı sistemi sayesinde proje, geleneksel bir yapı tipolojisine kıyasla yaşam döngüsü boyunca yaklaşık 5.400 ton daha az CO₂ salımı gerçekleştiriyor. Bu özelliğiyle WoodHub, belgelenmiş düşük karbon performansına sahip kamusal mimarlık alanında ulusal ölçekte bir referans yapıya dönüşüyor.
Görünür lamine ahşap kolonlar ve kısmen açıkta bırakılan çapraz lamine ahşap (CLT) döşemeler, yapının ana taşıyıcı elemanlarını oluşturuyor. Bu strüktürel sistem hem yüksek teknik performans sağlıyor hem de mekanda duyusal bir kalite yaratırken karbon depolama işlevi üstleniyor. Cepheler, çevredeki tuğla yapılarla uyum kuran kırmızı-kahverengi tonlarda geri dönüştürülmüş alüminyum panellerle kaplanmış. Cephe derinlikleri güneş hareketine göre çeşitlendirilerek pasif gölgeleme sağlanmış; bu sayede mekanik güneş kırıcı sistemlere ihtiyaç duyulmadan gün ışığından maksimum düzeyde yararlanılmış ve konforlu bir iç mekan iklimi elde edilmiş.
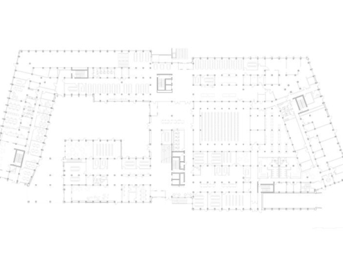
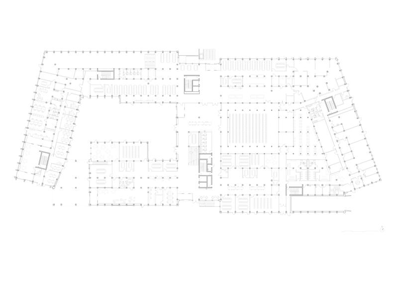
Mekansal organizasyon, ofis alanları ile sosyal buluşma mekanları arasında dengeli ve uyarlanabilir bir çerçeve oluşturuyor. İç mekanlar ihtiyaçlara göre yeniden düzenlenebilecek şekilde tasarlanarak uzun vadeli esneklik hedeflenmiş. Doğu ve batıya yönlenen, üç ila altı kat arasında değişen iki kademeli C planlı ofis kanadı, yedi katlı merkezi bir kanatla birleşiyor. Bu merkezi kanatta ağırlıklı olarak toplantı alanları yer alıyor ve bilgi paylaşımı ile iş birliğini teşvik edecek biçimde kurgulanıyor.
Zemin katta yer alan toplantı merkezi, yemekhane ve kamusal ön büro işlevleri yapıyı kentle ilişkilendiriyor; kentsel yaşam ile iç avlu bahçesi arasında doğrudan bir bağ kuruluyor. Dış cephe boyunca konumlanan nişler ve rekreasyon alanları, çalışma ortamı ile kamusal alan arasındaki etkileşimi güçlendiriyor. Yapı, merkezinde en yüksek kotuna ulaşırken çevredeki yapılarla uyum sağlamak amacıyla kademeli olarak alçalıyor. Çatı terasları, yükseltilmiş avlu bahçeleri ve yeşil iç avlular, çalışma mekanlarını açık alanlara taşıyarak hem molalar hem de açık hava toplantıları için alanlar sunuyor. Bu peyzaj kurgusu aynı zamanda yerel biyolojik çeşitliliği destekleyen bir ekosistem oluşturuyor.
WoodHub, masif ahşap taşıyıcı sistemin mimari anlatıya dönüştüğü, kamusal yapı ölçeğinde sürdürülebilirliğin somut olarak ortaya konduğu bir örnek olarak, çağdaş ofis tipolojileri için yeni bir referans oluşturuyor.










































































Salt Araştırma Fonları sunumları, Salt Galata, Aralık 2025 Fotoğraf: Metean Bars (Salt).