TOBB ETÜ Mimarlık ve Tasarım Fakültesi
Künye
Mimari Tasarım
TOBB ETÜ, Mimarlık Bölümü
Proje Yeri
Çankaya, Ankara
Tasarım Ekibi
Murat Sönmez (TOBB ETÜ, MTF, Mimarlık Bölümü, Öğr. Üyesi), Nur Çağlar (TOBB ETÜ, MTF, Mimarlık Bölümü, Öğr. Üyesi)
Yardımcılar
Aslı Özbek (TOBB ETÜ, MTF, Mimarlık Bölümü, Öğr. Gör), Nihat Eyce (TOBB ETÜ, MTF, Mimarlık Bölümü, Öğr. Gör), Burak Dönmez (TOBB ETÜ, MTF, Mimarlık Bölümü, Arş. Gör), Selcan Şimşek (TOBB ETÜ, MTF, Mimarlık Bölümü, mezunu, YL. Öğrencisi), Utku Doğanay (TOBB ETÜ, MTF, Mimarlık Bölümü, mezunu, YL. Öğrencisi), Selen Su Demir (TOBB ETÜ, Mimarlık Anabilim Dalı YL. Öğrencisi), Eren Yünür (TOBB ETÜ, MTF, İçmimarlık Bölümü, Öğr. Gör.)
Proje Yöneticisi
Murat Sönmez (TOBB ETÜ, MTF, Mimarlık Bölümü, Öğr. Üyesi)
Danışman
Tür-Sum İnşaat Proje Müşavirlik Ticaret A.Ş.
İşveren
TOBB ETÜ
Ana Yüklenici
YAKA Peyzaj, İnşaat Ltd. Şti
Konsept Tasarımı
Murat Sönmez (TOBB ETÜ, MTF, Mimarlık Bölümü, Öğr. Üyesi)
İç Mekan Projesi
Murat Sönmez (TOBB ETÜ, MTF, Mimarlık Bölümü, Öğr. Üyesi)
Peyzaj Projesi
On Tasarım Ltd. Şti.
Uygulama Projesi
A Tasarım Mimarlık Uygulama Danışmanlık İnş. San. ve Tic. Ltd. Şti.
Cephe Tasarımı
Murat Sönmez (TOBB ETÜ, MTF, Mimarlık Bölümü, Öğr. Üyesi)
Grafik Tasarım
TOBB ETÜ, MTF, Mimarlık Bölümü
Statik Projesi
Yüksek Proje
Mekanik Projesi
PROTES Mühendislik
Elektrik Projesi
AKAY Mühendislik Ltd. Şti
Tesisat Projesi
PROTES Mühendislik
Çelik Projesi
Yüksek Proje
Altyapı Projesi
MPK Mühendislik
Yangın Tahliye Projesi
METKA Proje Mühendislik
Yangın Güvenlik Danışmanı
METKA Proje Mühendislik
3 Boyutlu Görselleştirme
TOBB ETÜ, MTF, Mimarlık Bölümü
Mimari Mesleki Kontrollük
TÜR-SUM İnşaat Proje Müşavirlik Ticaret A.Ş.
Tamamlanma Tarihi
2024
Toplam İnşaat Alanı
5600 m2
Fotoğraflar
Sibel Acar (TOBB ETÜ, MTF, Mimarlık Bölümü), Oğuz Sağdıç (TOBB ETÜ, MTF, Görsel iletişim Tasarım Bölümü)
Murat Sönmez ve Nur Çağlar tarafından tasarlanan TOBB ETÜ Mimarlık ve Tasarım Fakültesi dönüşüm projesi, “tamir” metaforunu merkeze alan kurgusuyla özgün bir eğitim yapısı modeli sunuyor; fiziksel mekanların işlevsel olarak yeniden düzenlenmesinin ötesinde, mimarlık ve tasarım eğitimine yönelik düşünce mekansal bir dille yeniden ele alınıyor.
TOBB ETÜ Mimarlık ve Tasarım Fakültesi, farklı dönemlerde farklı kamusal ihtiyaçlara yanıt vermiş iki yapının dönüşümüyle şekillenen özgün bir eğitim yapısı olarak tasarlanmış. Bu iki yapıdan ilki, uzun yıllar Orman Bakanlığı’na bağlı olarak işleyen ve mekanik üretimin izlerini taşıyan bir tamirhane atölyesi; ikincisi ise, kamusal kullanımın daha gündelik, sosyal yönlerini temsil eden bir sosyal tesis binası. 2019 yılında TOBB ETÜ’ye devredilen bu yapılar, 2024 yılında tamamlanan bir dönüşüm süreciyle mimarlık ve tasarım eğitimine özgü bir kurumsal kimlik kazanmış.
Bu dönüşüm yalnızca fiziksel mekanların işlevsel olarak yeniden düzenlenmesini değil, aynı zamanda mimarlık ve tasarım eğitime yönelik düşüncenin mekansal bir dille yeniden kurgulanmasını da içeriyor. Endüstriyel geçmişin üretim kültürü ile sosyal tesisin içe dönük yapısı arasında kurulan denge, fakültenin yaşayan bir organizma gibi tasarlanmasını sağlamış. Böylece, geçmişin mekansal hafızası ile eğitimin bugünkü ve gelecekteki talepleri arasında bir ilişki kurulmuş. Bu ilişki, tamirhane yapısının üretime yönelik endüstriyel karakteriyle, sosyal tesisin gündelik yaşama daha yakın mekansal dili arasında kurulan denge sayesinde yeni bir bütünlük oluşturmuş; böylece fakülte, yaşayan bir organizma gibi tasarlanmış ve yorumlanmış.
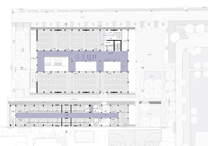
Fakülte; Mimarlık, Endüstriyel Tasarım, İç Mimarlık ve Görsel İletişim Tasarımı bölümlerini barındırıyor; toplamda 5500 m²’lik iki ana yapıdan oluşuyor: 4000 m²’lik eğitim bloğu ve 1500 m²’lik akademik ofis bloğu. Eğitim yapısında 16 stüdyo ve derslik ile çeşitli açık çalışma alanları yer alıyor; ofis yapısında ise 50 bireysel akademik ofis, 4 bölüm başkanı odası, dekanlık ve dekan yardımcılığı ofisleri, 5 sekreterlik birimi, 1 toplantı odası ve 3 lisansüstü çalışma/seminer odası bulunuyor.
Dönüşüm sürecinde, tamirhane ve sosyal tesisin taşıyıcı sistemleri korunarak güçlendirilmiş; mekansal kurgu, mimarlık ve tasarım eğitiminin güncel ihtiyaçlarına göre yeniden düzenlenmiş. Fiziksel müdahaleler aracılığıyla yapıların potansiyelleri açığa çıkarılmış; mekanlar, TOBB ETÜ Mimarlık Fakültesinin eğitime ilişkin yaklaşım ve vizyonunu öğrencilere ve tüm paydaşlara aktaran yeni işlevlerle yeniden kurgulanmış. Bu yaklaşımla fakülte binası, araştırma, üretim ve etkileşimi odağına alan çok katmanlı bir eğitim ekosistemine evrilmiş.
Tasarım Düşüncesi ve Kavramsal İçeriği
Bu dönüşüm projesinin temel kurgu ekseni, “tamir” kavramı etrafında şekillenmiş. Ancak burada tamir, dar anlamda fiziksel bir onarım eylemi olarak değil; mekanın, eğitimin ve bilgi üretiminin yapısal olarak yeniden ele alınmasına imkan veren kuramsal bir yaklaşım olarak değerlendirilmiş. Bu bağlamda tamir, mevcut yapıların potansiyellerini görünür kılmayı, mekansal ilişkileri yeniden kurmayı ve öğrenme ortamlarını dönüştürmeyi amaçlayan bir düşünme biçimi olarak benimsenmiş.
Mimarlık ve tasarım eğitimi bağlamında tamir, yalnızca yapıların değil; pedagojik modellerin, üretim biçimlerinin ve sosyal etkileşim formlarının da yeniden ele alınması anlamını taşıyor. Bu yaklaşım, eğitim yapılarının klasik ayrımlarını sorgulayan; sınıf, atölye, koridor gibi hiyerarşik mekan tanımlarını geçirgenleştiren yeni bir örgütlenme öneriyor. Böylece mimarlık fakültesi, bir bilgi aktarım mekanı olmakla birlikte, üretmenin, tartışmanın, birbirinden öğrenmenin, deneme yapmanın ve yeniden düşünmenin mekansal zemini olarak da işlev kazanıyor.
Bu çerçevede fakülte binasında ve “açık mekan” ve “yaşayan laboratuvar” kavramları bağlamından tanımlanan tasarım stratejileri geliştirilmiş. Açık mekan, öğrenmenin farklı boyutlarını birbirine temas ettiren, karşılaşmaları mümkün kılan ve bilgi üretimini mekansal hareketlilikle ilişkilendiren bir kurgu öneriyor. Açık mekan, yapı içindeki ögeler arasında keskin sınırlar tanımlamak yerine, geçirgenlik ve süreklilik üzerinden işleyen bir mekansal mantığa dayanıyor. Hareketi, etkileşimi ve ortak üretimi destekleyen bu yaklaşım, fiziksel alanları durağan birer mekan değil, sürekli değişen ilişkisel yüzeyler olarak ele alıyor. Bu sayede her alan, kendi işlevsel bütünlüğünü korurken aynı zamanda diğer alanlarla yeni bağlar kuruyor; bu bağlar ise eğitim pratiğinin çok merkezli ve katmanlı doğasını yansıtıyor. Açık mekan stratejisi, mimarlık ve tasarım eğitimini belirli mekanlara sıkıştırmak yerine, yapının tamamını öğrenme ortamı haline getirerek, kamusal, sosyal ve pedagojik ilişkilerin sürekli olarak şekil değiştirdiği, birbirini dönüştürdüğü bir atmosfer yaratıyor.
“Yaşayan laboratuvar” kavramı, mimarlık ve tasarım eğitiminde deneyimsel öğrenme, kolektif üretim ve disiplinler arası etkileşimi önceleyen bir pedagojik ortam oluşturma hedefinin ürünü. Bu anlayış, öğrenciler, akademisyenler ve üretim süreçlerinin mekansal olarak sürekli karşılaştığı, iç içe geçtiği ve birbirini dönüştürdüğü bir ortamın inşasını öngörüyor. Fakülte binasının açık mekanları, yalnızca eğitimin gerçekleştiği fiziksel alanlar olmaktan çıkarak, eğitimin kurucu ve etkin bir bileşeni haline geliyor. Bu mekanlar, düşünme, üretme ve etkileşim pratiklerini teşvik ederken; disiplin içi ve disiplinler arası formel ve enformel ilişkilerin yeniden kurulduğu, sosyal ve pedagojik bilgi alışverişinin canlı biçimde sürdüğü bir deneyim zemini sunuyor. Yaşayan laboratuvar, açık ve dönüşebilir yapısıyla bu zemin üzerindeki süreçlerin sürekliliğini destekliyor; eğitimin formel ve enformel boyutları arasında dinamik bir geçiş alanı yaratarak, farklı disiplinlerin içerik ve üretimlerinin kesişmesine, gelişmesine ve evrilmesine olanak tanıyor. Böylece eğitim mekanı hem değişimin hem de değiştirmenin aktif bir mecrası olarak konumlanıyor.
Açık Mekan Kavramı ve Mimarlık/ Tasarım Eğitimine Katkı
Tamirhane metaforu, eğitim ve öğretim süreçlerinin yeniden düşünülmesine olanak tanıyan dinamik bir mekansal modelin gelişmesine zemin hazırlamıştır. Bu model, akademik üretim ve öğrenme ortamlarını durağan değil, dönüşüme açık ve sürekli evrilen bir sistem olarak ele alma imkanı sunmuş. TOBB ETÜ Mimarlık ve Tasarım Fakültesi binası ise bu yaklaşımı “açık mekan” anlayışıyla somutlaştırarak; formel ve enformel eğitimi iç içe geçiren, disiplinler arası karşılaşmaları teşvik eden ve kolektif deneysel üretimi merkeze alan yaşayan bir laboratuvar, yani bütüncül bir akademik ekosistem olarak tasarlanmış.
Bu bağlamda açık mekan, yalnızca fiziksel bir kurgu olmanın ötesine geçerek; bilgi üretimi, paylaşımı ve öğrenme biçimlerine dair düşünsel bir strateji olarak işlev kazanıyor. Açık mekan anlayışı, bir yandan “tamir” kavramını edilgen bir arka plan olmaktan çıkarıp pedagojik sürecin etkin ve dönüştürücü bir bileşeni hâline getirirken, diğer yandan bir laboratuvarın temel işlevi olan deney yapma ve çıkarım üretme süreçlerine zemin hazırlıyor. Böylece etkileşimi, esnekliği, deneysel bilgiyi ve kolektif üretimi önceleyen bir öğrenme yaklaşımı biçimleniyor.
Bu yaklaşımın temel bileşenleri şu şekilde sıralanıyor:
Açık Ortak Mekan ve Açık Amfi: Eğitim yapısının kavramsal ve mekânsal odağını oluşturan açık ortak alan, çeperlerde konumlanan stüdyoların ortasında bir sokak, avlu ya da galeri gibi işlerlik kazanıyor. Endüstriyel geçmişe referans veren bu alan, akademik ve sosyal yaşantıyı kesiştiren bir buluşma noktası. Zemin ve birinci katı birleştiren açık amfi ise kampüs içi dolaşımı binaya entegre ederken mekanın sürekliliğini destekliyor.
Açık Sınıflar/Stüdyolar: Kuzey ve güney yönünde konumlandırılan stüdyolar doğrudan açık ortak mekana açılıyor. Cam bölmeler aracılığıyla sağlanan görsel ve fiziksel bütünlük, eğitim ortamının şeffaf, geçirgen ve birbirine bağlı hale gelmesini sağlıyor. Bu sayede, öğrenme süreci sınırlı alanlara kapanmadan, binanın tümüne yayılan bir deneyime dönüşüyor.
Açık Çalışma Alanları: Ortak açık mekanın farklı noktalarına yerleştirilen çalışma alanları, üretimi stüdyo sınırlarının ötesine taşıyarak akademik faaliyetleri yaygınlaştırıyor. Böylece, mekansal kurgu öğrencinin inisiyatifine açık hale geliyor ve öğrenme zamanla sınırlanmadan süreklilik kazanıyor.
Açık Konstrüksiyon: Ortak açık mekanı bölen konstrüksiyon, sergi alanı, depolama birimi, mekanı strüktüre eden yapısal bir araç ve dolaşımı yönlendiren bir düzenleyici. Aynı zamanda öğrencilerin üretim süreçlerini görünür kılan bir vitrin görevi de üstleniyor ve öğrenme süreçlerinin kamusallaşmasına katkı sunuyor.
Fakülte binası, açık mekân bileşenleri aracılığıyla tamir kavramının mekansal süreklilik, esneklik ve yeniden programlama olanaklarıyla nasıl bütünleşebileceğini ortaya koyuyor. “Tamirhane”, mimarlık ve tasarımı disiplinler arası bir üretim zemini olarak yeniden düşünmeye çağırırken; açık mekan bu çağrının somut, yaşanabilir ve üretken bir karşılığını kuruyor.
Bu yaklaşım sayesinde, eğitim yalnızca sınıf ortamlarında değil, yapının farklı noktalarında yaşayan bir deneyim haline geliyor; bilgi üretimi, karşılaşmalar, gündelik etkileşimler ve kolektif üretimler yoluyla zenginleşiyor; mekan, sadece barınak ya da fonksiyonel bir kabuk değil, öğrenmeyi kolaylaştıran ve dönüştüren bir aktöre dönüşüyor. Böylece fakülte binası eğitime yönelik pedagojik süreçlerin de mekan üzerinden yeniden tanımlanabileceğini gösteren deneysel bir öneri ortaya koyuyor. Bu kapsamda açık mekan yaklaşımı, tamir kavramının potansiyelini pedagojik bir çerçeveye dönüştürerek, mimarlık ve tasarım eğitiminin yeni biçimlerine olanak sağlıyor.
Deney ve Yaşayan Laboratuvar: Bilginin Enformel/İrrasyonel Halleri
TOBB ETÜ Mimarlık ve Tasarım Fakültesi binası, yalnızca bir eğitim yapısı olmanın ötesine geçerek, bilginin üretildiği, dönüştüğü ve dağıldığı dinamik bir sistem olarak kurgulanmış. Bu sistemin temel kavramsal taşıyıcısı olan “yaşayan laboratuvar”, yapının hem fiziksel hem de pedagojik örgütlenmesine yön veren bir düşünce biçimi. Deneyin sadece bilimsel değil, pedagojik ve tasarımsal bir araştırma yöntemi olarak kabul gördüğü; formel ve informel bilgi üretimlerinin iç içe geçtiği, öngörülemezliğe ve rastlantıya açık süreçlerin desteklendiği bir eğitim ortamı.
Bu kavram, eğitimi sabit yapılar ve önceden tanımlanmış süreçler üzerinden değil, sürekli evrilen, kendini dönüştüren ve yeniden üreten bir organizma olarak ele alıyor. “Yaşayan” niteliği, laboratuvarı zamana duyarlı, mekana açık ve öznel deneyimlere dayalı bir bilgi üretim ortamı haline getiriyor. Bu bağlamda, bina içindeki açık mekanlar bu dinamik yapının maddi zemini olarak işlev görüyor. Atölyelerden koridorlara, sergi birimlerinden açık konstrüksiyona kadar her alan, hem deneyimlenebilir hem de dönüştürülebilir bir araç olarak tasarlanmış. Böylece eğitim, yalnızca derslik veya stüdyo sınırlarında gerçekleşen bir etkinlik olmaktan çıkıyor; yapının tamamına yayılan, yapı ile birlikte gelişen ve derinleşen bir öğrenme pratiğine dönüşüyor.
“Yaşayan laboratuvar” kavramı, modern eğitimin baskın formel aklına karşı, irrasyonel unsurları da kapsayan alternatif bir öğrenme ortamı öneriyor. Öğrencinin sezgileri, rastlantıları, hataları ve tekrarları bu ortamda anlamlı ve geliştirici bir sürecin parçası haline geliyor. Rasyonel bilgi kadar deneysel, duygusal ve sezgisel bilgi de dolaşıma giriyor. Bu yaklaşım, mimarlık eğitimine yalnızca problem çözen değil, aynı zamanda problem kuran ve dönüştüren bireyler kazandırmayı amaçlıyor.
Ayrıca, bu laboratuvar anlayışı, disiplinler arası ve kolektif öğrenmeyi destekleyen dinamik bir ekosistem sunuyor. Fakülte, farklı bölümlerin ortak mekanlar etrafında etkileşime geçtiği, üretim süreçlerinin birbirine temas ettiği ve zamanla dönüşerek yeni düşünme biçimlerinin geliştiği bir üretim zeminine dönüşüyor. Açık konstrüksiyon sistemi, bu süreci görünür ve erişilebilir kılarak kamusal bir öğrenme estetiği üretiyor. Bilginin enformel halleri yalnızca desteklenmekle kalmıyor, aynı zamanda mekansal olarak sahneleniyor. Böylece “yaşayan laboratuvar”, sabit ve sınırları belirlenmiş bir eğitim düzeninden çok, sürekli akan ve dönüşen bir bilgi deneyimi yaratıyor. Bu yaklaşım, içerikle birlikte mekansal kurguyu ve sosyal etkileşim biçimlerini de dönüştürerek mimarlık ve tasarım eğitimini yalnızca mesleki bir pratiğe değil, aynı zamanda düşünmeye, hissetmeye ve birlikte üretmeye dayalı bütünsel bir sürece dönüştürüyor.
Mekansal Organizasyon ve Yapısal Stratejiler
Endüstriyel bir yapının akademik bir üretim alanına dönüşümü, yalnızca fiziksel bir dönüşüm değil; aynı zamanda bilginin dolaşımı, ilişkisel mekan örgütlenmesi ve deneyime açık yüzeylerin kurulumu açısından da yapısal bir yeniden kurgulama süreci oluşturuyor. Fakülte binasında benimsenen yapısal stratejiler, “tamir” kavramının yalnızca metaforik değil, aynı zamanda yapısal bir ifade biçimine dönüştüğü, mevcut mekansal bellek ile yeni olanın birlikte yaşadığı bir ortam oluşturmuş.
Bu bağlamda, var olan kolon aksları korunmuş; ancak üç yeni aksın eklenmesiyle hem mekansal süreklilik güçlendirilmiş hem de müdahale katmanları görünür kılınmış. Taşıyıcı sistemin önemli bileşenlerinden biri olan çelik çatı makasları, olduğu gibi bırakılmak yerine güçlendirilmiş ve açıkta bırakılarak hem estetik hem didaktik bir öğeye dönüştürülmüş. Bu yaklaşım, yapının strüktürel omurgasını yalnızca taşıyıcı değil, aynı zamanda eğitici bir unsur olarak değerlendiriyor. Tamirhane işlevinden kalan “yağ değişim çukuru” gibi öğeler ve özgün cephe sistemleri korunarak mimari belleğin katmanları açığa çıkarılmış; bu unsurların güncel işlevlerle kurduğu ilişki, mevcudun yeniden programlanabilirliğini gösteriyor. Bu kararlar, informel bilginin, deneysel üretimin ve çok aktörlü öğrenme pratiklerinin mekanda iz bırakmasına olanak tanıyor.
Sonuç olarak, bu yapısal ve mekansal stratejiler yalnızca bir adaptasyon değil; geçmişiyle barışık, şeffaf ve dönüşebilir bir “üretim organizması” oluşturmayı hedefliyor. Yapı, sabit işlevlerden çok, değişen ihtiyaçlara yanıt verebilecek esnekliğe sahip, açık uçlu bir öğrenme zemini olarak kurgulanmış. Böylece bina anatomisi, sadece mühendislik çözümlemelerinin değil, aynı zamanda düşünsel, toplumsal ve üretimsel dönüşümlerin de taşıyıcısı haline geliyor.
Sonuç
TOBB ETÜ Mimarlık ve Tasarım Fakültesi, endüstriyel bir yapının “tamir” metaforu üzerinden dönüşümü, mekansal değişimin düşünsel, toplumsal ve pedagojik boyutlarını bir araya getiren özgün bir eğitim yapısı modeli sunuyor. Bu model, fiziksel bir uyarlama veya yenilenme olduğu kadar; mekanın sezgisel bilgi üretimine, deneyime dayalı öğrenmeye ve alternatif düşünme biçimlerine olanak tanıyacak şekilde çoğul, çok katmanlı ve açık bir sistem olarak tasarlanmasını ifade ediyor. Böylece mekan, sadece içinde bulunulan bir ortam değil, mimarlık ve tasarım eğitiminin etkin bir bileşeni haline geliyor.
Açık mekan ve yaşayan laboratuvar kavramları bu dönüşümün kurucu unsurları olarak öne çıkıyor. Açık mekan, farklı ölçeklerdeki üretimleri ve kullanıcılar arası etkileşimi destekleyen esnek bir öğrenme zemini sunarken, yapının tamamı bir yaşayan laboratuvar olarak kurgulanmış; böylece öğrenciler, eğitimin nesnesi olarak değil, üretimin öznesi olarak konumlanmış. Bu yaklaşım, pedagojik pratiği sabit ve kapalı mekanlardan özgürleştirerek, mimarlık eğitimine doğrudan mekan aracılığıyla katılım olanağı sunuyor.
Yapısal kararlar ve tasarım stratejileri doğrultusunda bu endüstriyel yapının anatomisi, yalnızca bir taşıyıcı sistem olarak değil, aynı zamanda pedagojik bir organizma olarak yeniden ele alınmış. Güçlendirilmiş çelik makaslar, eklemlenen yeni akslar ve korunan yapısal izler; yapının teknik anlamda mekansal niteliğini iyileştirirken, aynı zamanda eğitsel anlamını da vurgulayan unsurlar olarak düşünülmüş. Böylece yapı, bir yandan geçmişin üretim pratiklerini ve mekansal hafızasını barındıran bir arşiv niteliği taşırken, diğer yandan sezgisel bilgi üretimini, deneyime dayalı öğrenmeyi ve çok katmanlı düşünme biçimlerini destekleyen güncel bir sistem laboratuvarına dönüştürüyor.
Bu yaklaşım, mimarlık eğitiminde mekanı edilgen bir zemin olarak görmüyor; onu düşünsel üretimin ve pedagojik kurgu süreçlerinin aktif bir bileşeni olarak değerlendiriyor. Yapının dönüşüm süreci, mevcut strüktürün potansiyellerini açığa çıkarırken aynı zamanda öğrenme biçimlerini yeniden yapılandırıyor. TOBB ETÜ Mimarlık ve Tasarım Fakültesi, bu niteliğiyle, yapılı çevrenin dönüşümünden beslenen, eğitsel programla fiziksel ortam arasında bütünlüklü ilişkiler kuran yenilikçi bir model ortaya koyuyor.


































©Egemen Karakaya