Tammela Stadyumu
Künye
Mimari Tasarımcı
JKMM Architects
Proje Yeri
Tammela, Tampere, Finlandiya
İşveren
Tampere Belediyesi
Statik Proje
Ramboll Finland Oy
Cephe Projesi
JKMM Architects, Ramboll Finland Oy
Peyzaj Projesi
VSU maisema-arkkitehdit Oy
Akustik Projesi
A-Insinöörit
Aydınlatma Projesi
Tommi Grönlund & Petteri Nisunen
Toplam İnşaat Alanı
Stadyum: 13.436 m²
Konut alanları: 21.896 m²
Alt alanlar (ticaret + otopark): 12.421 m²
Toplam hibrit blok alanı: 47.753 m²
Tamamlanma Tarihi
2024
Fotoğraflar
Hannu Rytky, Tuomas Uusheimo
JKMM Architects, Tammela Stadyumu’nda futbol sahasını konut, ticaret ve kamusal kullanımlarla aynı yapı adası içinde birleştiren hibrit kurgusuyla, strüktürün mimari ifadeyi doğrudan belirlediği çağdaş ve kentsel ölçekte bir spor yapısı tasarladı.
Finlandiya’nın ilk hibrit futbol stadyumu olan Tammela Stadyumu, 2024 baharında Tampere’nin Tammela bölgesinde tamamlandı. Kentte uzun süredir beklenen proje, Tampere Belediyesi, Pohjola Rakennus ve JKMM Architects’in bir ittifak modeli kapsamında yürüttüğü on yılı aşkın tasarım ve inşa sürecinin ürünü. Yeni stadyum, hem kentlilerin günlük spor faaliyetlerine hem de 8.000 seyirci kapasiteli üst düzey futbol karşılaşmalarına hizmet verecek nitelikte tasarlandı.
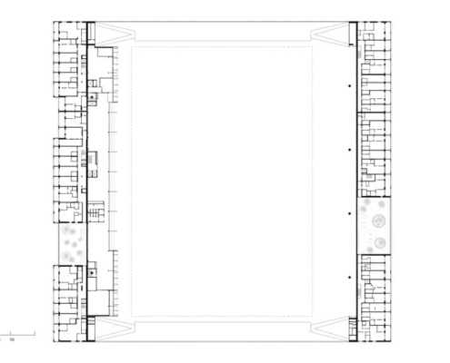
Yaklaşık 13.500 m² büyüklüğündeki stadyum, UEFA Kategori 4 standartlarını karşılayarak Avrupa Ligi ve milli takım maçlarına ev sahipliği yapabilecek donanıma sahip. Tribünlerdeki tüm oturma noktalarından saha kesintisiz biçimde görülebiliyor. Yapı, konser ve büyük ölçekli etkinliklerde ise 15.000 kişilik kapasiteye ulaşabiliyor. Stadyum, futbol sahasıyla birlikte beş konut yapısı, bir ticaret merkezi ve otopark alanlarını içeren, toplamda yaklaşık 50.000 m²’lik hibrit bir yapı adasının parçası.
1930’lu yıllardan bu yana futbol sahası olarak kullanılan eski Tammela Stadyumu, Finlandiya’da futbola özel inşa edilmiş ilk spor alanlarından biriydi. Tampere Belediyesi, bölgenin yoğunlaştırılması gereğine rağmen stadyumun tarihsel konumunu korumayı hedefledi. Bu doğrultuda 2014 yılında davetli bir mimari yarışma düzenlendi. JKMM Architects’in “Hattutemppu” (Hat-trick) adlı önerisi, sıkışık ada yapısı içinde kentsel tasarım, mimari, strüktürel ve trafikle ilgili zorluklara getirdiği bütüncül çözümlerle yarışmayı kazandı.
Hibrit yapı içinde farklı tipolojiler iç içe geçiyor. Tuğla kaplı konut yapıları, stadyumun uzun kenarlarına bakan canlı bir sokak cephesi oluştururken, avlular kütleler arasında çatı seviyesine yükseltilmiş durumda. Futbol sahası kompakt bir biçimde yerleştirilmiş; tribünler sahanın kenarlarından doğrudan yükseliyor. Cam girişler, sahayı rüzgardan korurken çevreyle görsel sürekliliği sürdürüyor.
Doğudan batıya doğru uzanan ve tüm yapı adasını örten kemerli çatı, yapının en ayırt edici mimari öğesi. Askılı çelik saçak sistemlerinden türeyen bu form, konut çatılarına doğru devam ederek yapıyı çevresiyle bütünleştiriyor ve kamusal işlevini dışarıdan okunur kılıyor. Kemerin en alçak noktası, sahanın uzun aksı boyunca konumlandırılarak hem oyun alanına gölge düşmesi engelleniyor hem de kuzeydeki okul bahçesi korunuyor.
Tampere, Finlandiya’nın en cazip kentsel bölgelerinden biri olarak görülüyor. Kent merkezinde sürdürülebilir ve nitelikli yoğunlaşma, kentin canlılığını ve hizmet altyapısını güçlendiriyor. Stadyum alanında hiçbir yapı yıkılmamış; eski tribünler, aydınlatma elemanları ve saha donatıları kentteki diğer spor alanlarında yeniden kullanılmış. Merkezi konumu sayesinde mevcut ulaşım altyapısından yararlanan stadyuma toplu taşıma ile kolayca erişilebiliyor. Yapının işletmesi, yerel futbol kulübü FC Ilves Tampere tarafından yürütülüyor.
Stadyumun çok amaçlı kullanımı, yapının kullanım süresini uzatarak farklı kullanıcı gruplarına hizmet etmesini sağlıyor. Hibrit blok, etkin bir bölgesel ısıtma ve soğutma ağına bağlanmış durumda. Strüktürlerin optimizasyonu tasarımın temel çıkış noktalarından biri olmuş; açık renkli çatı yüzeyi hava kirleticilerini ayrıştırırken ışığı yansıtarak alt mekanların ısınmasını azaltıyor.
Tammela Stadyumu, farklı işlevleri barındıran minyatür bir kent gibi kurgulanmış. Yapı adası, kentsel blok sistemine kesintisiz biçimde bağlanıyor. Konut yapıları park sokaklarına ve stadyumun kuzey ve güney meydanlarına açılıyor; seyirciler bu meydanlar üzerinden yapıya dağılıyor. Deplasman takım taraftarları için kuzeydoğu köşesinde ayrı bir giriş bulunurken, oyuncu, VIP, basın ve hakem girişleri adanın batı cephesinde konumlanıyor.
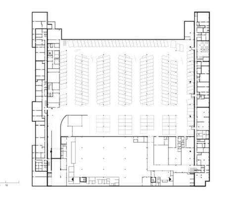
Otopark, ticaret merkezi, teknik hacimler ve konutlara ait destek alanları bodrum katta yer alıyor. Üst katlardaki konutlar farklı tip ve manzara seçenekleri sunuyor; en büyük daireler doğrudan futbol sahasına bakıyor. Stadyumun ana tribünü sahanın doğu kenarında, restoran, VIP ve basın tribünleri ise batı kenarında yer alıyor. Tasarım sürecinde ana tribün üzerine eklenen seyirci sıraları sayesinde yapı UEFA Kategori 4 standartlarına ulaştırılmış.
Aydınlatma tasarımı, stadyum deneyiminin dramatik etkisini güçlendiriyor. Sanatçılar Tommi Grönlund ve Petteri Nisunen tarafından tasarlanan “Puolenvaihto” (Devre Arası) adlı ışık yerleştirmesi, saçakların alt yüzeyinde yer alıyor. Hareketli ışık grafiği, futbolun enerjisine ve devinimine göndermede bulunuyor.
Yapının mimarisi, belirgin biçimde tektonik bir karakter taşıyor. Strüktürel sistem ve birleşim detayları mimari ifadenin temelini oluşturuyor; yapı elemanları işlevlerini açıkça ortaya koyuyor. Tribünler kolonsuz olarak tasarlanmış, askılı saçak sistemlerinin birleşimleri kontrollü hareketlere izin verecek şekilde çözümlenmiş. Yakından bakıldığında masif ve neredeyse kaba görünen strüktür, uzaktan algılandığında hafif ve çizgisel bir silüete dönüşüyor.
Çelik kompozit kolonlar, yerinde dökme betonarme perde ve döşemelerle birlikte çalışıyor. Stadyumun köşelerinde eğimli kolonlar ve prefabrike çelik dallanan elemanlar bulunuyor. Askılı saçaklar, kablolarla taşınan köprü benzeri bir sistemle çözülmüş; bu sistem kar yükleri ve hareketlere uyum sağlayacak esnekliğe sahip. Cephelerde açık renkli tuğla, cam ve delikli çelik levhalar kullanılırken, saha zemininin yeşil sentetik çimi adeta çatıdaki bir açıklık gibi algılanarak futbolu mimari sahneye dönüştürüyor.


















































