Simple World
Künye
Mimari Tasarım
Jenchieh Hung + Kulthida Songkittipakdee / HAS design and research
Proje Yeri
Hefei, Çin
Tasarım Ekibi
Jenchieh Hung, Kulthida Songkittipakdee, Atithan Pongpitak, Tapanee Laddahom
Aydınlatma Teknolojisi
Visual Feast (VF)
Aydınlatma Danışmanı
Jenna Tsailin Liu
Peyzaj Danışmanı
Weili Yang
Yapım Danışmanı
Zaiwei Song
Yüklenici
Guangdong Xingyi Decoration Group Anhui Co., Ltd.
Tamamlanma Tarihi
2024
Toplam İnşaat Alanı
2.930 m²
Fotoğraflar
W Workspace, Fangfang Tian, Jenchieh Hung, Kulthida Songkittipakdee
HAS Design and Research tarafından tasarlanan Simple World, Hefei’deki büyük ölçekli bir mobilya merkezini yeniden işlevlendirerek sanat, tasarım ve gündelik yaşamı bir araya getiren beş mekansal müdahale aracılığıyla çağdaş Çin kentlerinde kamusal, kültürel ve deneyim odaklı yeni bir mimari model öneriyor.
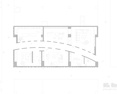
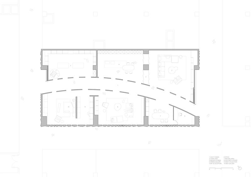
Simple World, Anhui Eyaleti’nin Hefei kentinde, Çin’in teknoloji odaklı yenilik ve kültürel turizm politikalarının kesiştiği bir noktada yer alıyor. Proje, Tayland merkezli HAS Design and Research’in kurucuları Jenchieh Hung ve Kulthida Songkittipakdee tarafından, Çinli bir işveren için tasarlanan beş bağlantılı mimari yapıyı kapsıyor. Bu yapılar; kamusal çağdaş sanat müzesi, özel koleksiyon galerisi, mobilya konsept alanı, gastronomi sergi galerisi ve yaşam deneyimi mekanından oluşuyor. Yaklaşık 3.000 metrekareye yayılan bu yapı grubu, sanat sergileme ve ticari işlevleri bir arada barındırıyor.
Bu beş proje, boş bir arsa üzerinde değil, Hefei’nin yeni gelişen bölgesindeki büyük bir mobilya alışveriş merkezinin içinde konumlanıyor. Çin şehirlerinde yaygınlaşan ekonomik yavaşlama, nüfusun yaşlanması ve yeni inşa edilmiş bölgelerin yeterince kullanılmaması gibi sorunlara yanıt olarak Simple World, mimarlık aracılığıyla tek kullanımlı ticari alanlara alternatif üretmeyi amaçlıyor. Kültür, sanat, tasarım ve sergileme işlevlerini bir araya getirerek karışık kullanımlı yaşamın yeni bir modeli öneriyor ve yerel topluluğun kültürel beklentilerini karşılayan mekanlar sunuyor.
Projenin ilk bileşeni olan Simple Art Museum, mevcut mobilya kompleksinden dışarı doğru genişleyerek yıl boyunca halka açık, ücretsiz bir çağdaş sanat alanı oluşturuyor. Kıvrımlı saçaklar, Huizhou bölgesinin geleneksel beşik çatı duvarlarını çağdaş bir biçimde yorumluyor. Bu öğeler, iç ve dış mekan arasında kesintisiz bir akış sağlayan mimari elemanlara dönüşüyor. Müze hem cadde yönünden hem de alışveriş merkezi içinden erişilebiliyor ve böylece ticari bir yapının içine kamusal nitelikli bir kültür mekanı yerleştiriyor.
İkinci yapı, Asya sanat koleksiyonu ile modern Kuzey Avrupa mobilyalarını bir araya getiren özel bir galeri. Gürültülü bir yol, otopark ve çöp depolama alanına komşu konumdaki yapı, dışa açılmak yerine içe yönelen bir mekansal kurguya sahip. Eğrisel duvarlar, Anhui’nin sarı dağlarındaki kaya mağaralarını çağrıştıran bir geçiş oluşturuyor. Bu yaklaşım, hem dış çevrenin karmaşasını filtreliyor hem de iç mekanda ritüel ve dinginlik hissi yaratan bir atmosfer sunuyor.
Üçüncü proje, mobilya odaklı bir konsept galeri ve amiral mağaza olarak tasarlanmış. Çevresi, farklı renk ve biçimlerde düzensiz perakende yapılarıyla çevrili bu alanda tasarımcılar, yakınındaki Nanfei Nehri’nin yazın akışkan, kışın ise donmuş hallerinden esinlenmiş. Yapının dış cephesi, buzdan oyulmuş bir taş ormanını andırıyor. Buna karşılık iç mekan, nehri izleyen yumuşak ve süreklilik hissi veren bir dolaşım kurgusuyla açılıyor. Keskin dış form ile akıcı iç mekan arasındaki karşıtlık, peyzajın mevsimsel değişimini mimari bir dile dönüştürüyor.
Dördüncü proje, gastronomi sergi alanı ve çok işlevli bir mutfak atölyesi. Başlangıçta düzensiz bir perakende ortamı gibi görünen alan, komşu konumdaki gizli ağaç hattı sayesinde güçlü bir potansiyele sahip. Bu ağaçların arasından akan küçük bir şelale bulunuyor. Proje, bu doğal unsuru merkeze alarak beton dokunun içinde dere vadisini çağrıştıran akıcı bir cephe öneriyor. Böylece ışık alan, ferah ve doğa ile ilişkili bir iç mekan oluşturulmuş.
Beşinci proje, yaşam tarzı konsept mekanı ve mobilya sergisi olarak tasarlanmış. Tasarımcılar, ticari sunumlardan uzak, meditasyon hissi veren bir geçit yaratmak amacıyla alanın geçmişteki orman dokusundan ilham almış. Yerel ahşaplarla oluşturulan “ışık tüneli”, dış dünyanın gürültüsünü filtreleyen içe dönük bir güzergah sunuyor. Bu geçitte ürün sergisi yapılmıyor, reklam ve satış odaklı hiçbir unsur bulunmuyor. Bu alanda ziyaretçiye sakin ve düşünsel bir deneyim sağlamak amaçlanmış.
Simple World, büyük ölçekli bir alışveriş merkezini kültürel ve kamusal işlevlerle dönüştürerek adaptif yeniden kullanımın güçlü bir örneğini sunuyor. Beş yapı, hem inşaat atığını azaltan hem de modern Çin kentlerinin kullanılmayan büyük ticari yapılarında yeni yaşam biçimleri öneren bir mimari strateji geliştiriyor. Bu yaklaşım, kentin doğal bağlamını ve kültürel anlatılarını dikkate alarak toplum, kültür ve doğa arasında yeni bir birliktelik öneriyor.


















































































