Parlak Diş Polikliniği
Künye
Proje Yeri
Arnavutköy, İstanbul
Tasarım Ofisi
BOStudio
Tasarım Ekibi
Berkan Öztürk
İşveren
Parlak Diş Polikliniği
Ana Yüklenici
BOStudio
İnşaat Bitiş Yılı
2025
Toplam İnşaat Alanı
165 m²
Fotoğraflar
Hacer Bozkurt
BOStudio tarafından tasarlanan Parlak Diş Polikliniği, İstanbul Arnavutköy’de kullanıcı sirkülasyonunu doğal yönlendirmelerle destekleyen, estetik ve işlevsel dengenin ön planda tutulduğu bir kurguya sahip.
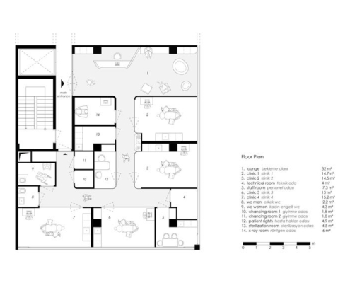
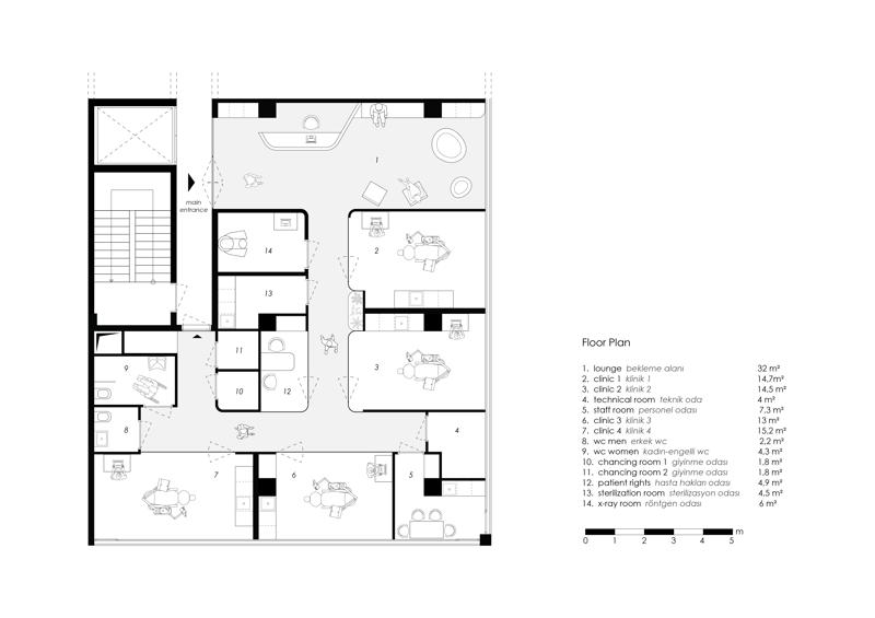
İstanbul Arnavutköy’de yer alan Parlak Diş Polikliniği, yüz altmış beş metrekarelik bir alanda estetik ve işlevselliği bir araya getirecek şekilde tasarlanmış. Yuvarlatılmış duvarlar ve onları takip eden aydınlatmalar, girişten muayene odalarına kadar kesintisiz bir dolaşım ve güçlü perspektifler sağlıyor. Bu kıvrımlı yüzeyler, hem mekanın sınırlarını bulanıklaştırıp hem de ziyaretçiyi doğal bir şekilde sirkülasyon akslarına yönlendiriyor.
Muayene odaları cephe tarafına konumlandırılmış; doğal ışık ve havalandırmadan maksimum düzeyde faydalanacak şekilde tasarlanmış. Sterilizasyon odası, röntgen odası ve personel alanları ise muayene odalarının karşısına yerleştirilerek mahremiyet ve işlevsellik önceliklendirilmiş.
Klinikteki aydınlatma tasarımı, yalnızca fonksiyonel bir ihtiyaç olarak değil, aynı zamanda tavan tasarımı ile bütünleşerek mekansal yönlendirme aracı olarak kurgulanmış. Gizli aydınlatmalar ve özel tavan tasarımı, sirkülasyon aksları boyunca kullanıcıyı doğal bir biçimde yönlendiriyor ve mekanın perspektifini güçlendiriyor. Beyaz duvarlar ve lake kapılar, steril ve nitelikli bir algı yaratırken, tavan ve döşemeden koparılmış elemanlar mekanı tanımlayarak kullanıcı kullanımı kolaylaştırıyor.
Mobilyalar, yerden ve yan duvarlardan hafifçe ayrılmış olarak tasarlanmış. Klinik alanlarını ferah ve düzenli kılarken estetik bir zarafet de sunuyor. Banko ve bekleme alanındaki oturma birimleri, kıvrımlı form diliyle bütünleşerek mekanın karakterini pekiştiriyor ve minimum metrekarede maksimum konfor sağlıyor.
Yeşil tonları, klinik içindeki görsel hiyerarşiyi belirleyen ana unsurlardan biri olarak öne çıkıyor. Bekleme ve dolaşım alanlarında kullanılan farklı yeşil tonları, mekanın sakinleştirici etkisini pekiştirirken aynı zamanda kullanıcıya alanın işlevselliğini sezdiriyor.






















