Omploop Farmhouse
Künye
Mimari Tasarım
Hé! architectuur
Proje Yeri
Roosdaal, Belçika
Tamamlanma Tarihi
2023
Fotoğraflar
Tim Van de Velde
He! Architectuur tarafından yenileme projesi gerçekleştirilen Omloop Farmhouse, tipik bir Flaman evinin mekansal kurgusundaki değişimler ve doğa ile olan bağını güçlendirecek eklemelerle sakinlerine çağdaş sürdürülebilirlik standartlarını sağlayan bir yaşam alanı sunuyor.
Omloop Farmhouse projesinin dönüşüm hikayesi, Marc ve Ann çiftinin 1990’larda satın aldıkları çiftlik evini çağdaş sürdürülebilirlik standartlarına uygun olarak yenileme kararı ile başlamış. He! Arkitektuur tarafından gerçekleştirilen yenileme projesinde, hem evin hem de bulunduğu yerin evin sakinleri için taşıdığı duygusal anlam tasarıma yön veren unsurlar arasında yer alıyor. Amaçları, evin çevresi ile kaybolan doğa bağlantısını yeniden kurmak olarak ifade ediliyor. Açık planlı, merkeze sıkıştırılmış toprak sobanın yer aldığı bir ev hayal eden aile üyeleri, dostları ile birlikte yenileme sürecine aktif olarak katkıda bulunmuş. İlk bakışta, standart bir Flaman “fermette”yi yenilemek Hé! için sıradan bir iş gibi görünüyormuş. Bu tür evler bölgede yaygın olmakla birlikte, çağdaş enerji standartlarını karşılamıyor ve genellikle mimari olarak değerli görülmüyor. Ancak Hé!, kısa sürede bu tip konutların gelecekte neye evrilebileceği sorusuyla ilgilenmeye başlamış.
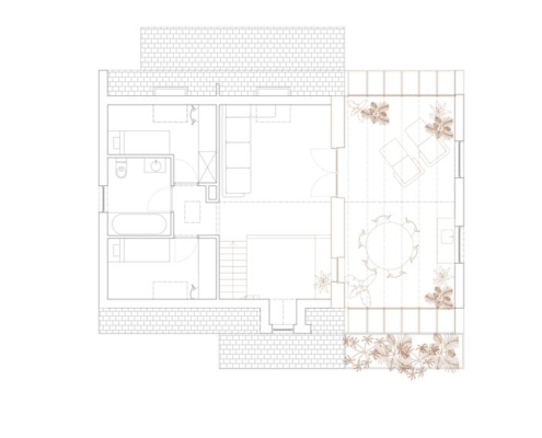
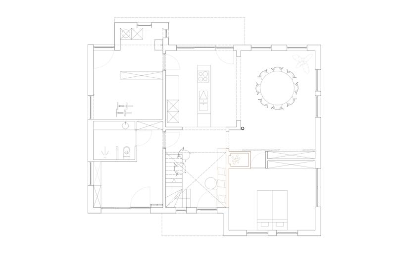
Ofis, öncelikle evin mevcut organizasyonuna ve çevreyle olan kopukluğuna yönelik eleştirel bir analiz gerçekleştirmiş. Ardından mimarlar, yapının geleneksel düzeninden kurtulmak için evi “yararak açma” yöntemini benimsemişler. Bu yaklaşım, aynı zamanda evi daha kompakt hale getirme yani yoğunlaştırma (densifikasyon) amacını taşıyor. Çocukların eski yatak odaları kaldırılarak yerine, kalın sıkıştırılmış toprak duvarla çevrili bir kış bahçesi inşa edilmiş. Bu duvar, sahip olduğu termal kütle sayesinde tampon görevi görüyor; soğuk günlerde güneş ışığı kış bahçesini ve duvarı ısıtarak iç mekana sıcaklık veriyor; sıcak günlerde ise bu ısıyı içeriden uzak tutarak serinlik sağlıyor.
Eski koridor ve çalışma odası, artık kış bahçesine açılan yeni bir oturma odasına dönüşmüş. Geniş ve önceki işlevsiz giriş holü ise, merkezi konumda yer alan ve eski yakıt kazanının yerini alan toprak sobanın yanında samimi bir oturma alanına çevrilmiş. Eski garaj artık evin ana girişini oluşturuyor; iç duvarlar ise beyaz yerine kırmızı kil sıva ile kaplanmış. Zemin katta yer alan ferah bir yatak odası ve kompakt bir banyo sayesinde, ev ömür boyu yaşanabilir hale getirilmiş.



















































©Heatherwick Studio