Nikola Karabatic Spor Kompleksi
Künye
Mimari Tasarım
Atelier Aconcept
Proje Yeri
Mennecy, Fransa
Tamamlanma Tarihi
2024
Toplam İnşaat Alanı
2000 m²
Fotoğraflar
11h45
Atelier Aconcept tarafından tasarlanan Nikola Karabatic Spor Kompleksi, kompakt ve iç içe geçen dikdörtgen kütlelerden oluşan yapısıyla, doğal ışık kullanımı, kamusal açıklık ve çok amaçlı kullanım gibi işlevsel hedefleri, yalın bir mimari dil aracılığıyla bir araya getiriyor.
Fransa’nın Mennecy kentinde, Atelier Aconcept tarafından 2024 yılında Val d’Essonne Topluluklar Birliği (Communauté de Communes du Val d’Essonne) için inşa edilen Nikola Karabatic Spor Kompleksi, göz alıcı, altın renginde ve adeta havada süzülen bir hacim olarak karşımıza çıkıyor.
Bir iş bölgesinin güney ucunda konumlanan bu spor kompleksi, Fransız şampiyon Nikola Karabatic’in madalyalarla dolu kariyerine ışık saçan yansımalarıyla saygı duruşunda bulunuyor ve bölgesel kalkınmanın bir simgesi haline geliyor. Gösterişli metal cephesi, yapının kamusal doğasını vurguluyor.
Tasarım, iki kaydırılmış ve iç içe geçen dikdörtgen hacimden oluşuyor; bu stratejik düzenleme, cephenin etkisini maksimize ederken kullanıcıları doğrudan güneş ışığından da koruyor. Lento bölümünün hafif çıkıntısı, yaz aylarının uzun günlerinde gölgelik görevi görüyor.
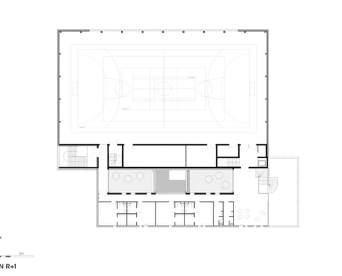
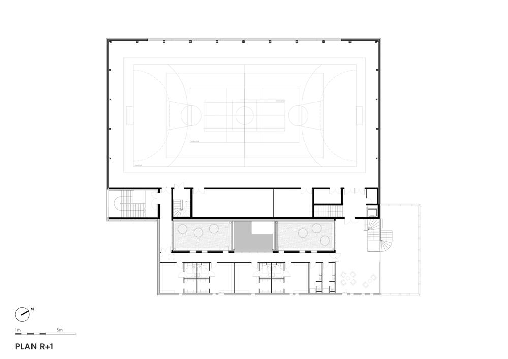
Zemin kat seviyesinde, resepsiyon holü ön avludan kesintisiz bir şekilde uzanarak iç ve dış mekan arasındaki sınırları bulanıklaştırıyor. Üç cephesi tamamen cam olan bu atrium, biçim ile işlev arasında şeffaflık sağlıyor. Doğal ışıkla dolan bu alan, ziyaretçileri binanın kalbine yönlendiriyor. Çift yükseklikteki hol, zemin kattan doğal bir şekilde yükselen asma kata kolay erişim sağlıyor.
Işığa göre değişen altın renkli genişletilmiş metal ile kaplanmış olan asılı hacim, çok amaçlı spor salonuna ev sahipliği yapıyor. Bu alan, çeşitli kapalı dış mekan aktivitelerine olanak tanırken, cömertçe tasarlanmış bir peyzajla çevrelenmiş. Kuzeyden gelen kesintisiz doğal ışık şeridi ve güney cephesindeki cam bant, iç mekanı aydınlıkla dolduruyor.
Yapının yüksekliğinin maksimize edilmesi, mimari varlığını güçlendiriyor. Altın kaplama, dikkat çekici olduğu kadar Nikola Karabatic’in ismiyle özdeşleşen mükemmellik arzusunun da sembolü olarak özenle seçilmiş. Üst kat spor salonu, çoklu spor konfigürasyonlarına uygun şekilde tasarlanmış, kusursuz dikdörtgen bir alan olup 100 ila 150 seyirci kapasiteli tribünler barındırıyor.
Yapının çok yönlülüğü, zemin katta yer alan iki ek oda ile daha da pekişiyor. Kare formundaki bu aktivite alanlarının her biri, bale barları, aynalar, projeksiyonlar veya sergiler için en az bir kesintisiz duvara sahip. Doğrudan dış mekana açılan bu odalar parkla bütünleşiyor. Yanlarındaki ortak bir depo alanı da bu odaların esnekliğini artırıyor.
Geniş sirkülasyon alanları, kullanıcı konforunu ön planda tutuyor. Zemin kattaki merkezi avlu, doğal ışık ve görsel ferahlık sağladıktan sonra uzayarak daha büyük ve uzun bir iç bahçeye dönüşüyor ve bu alan asma katı ile çevre geçitleri aydınlatıyor.
Arsa koşulları, otopark planlamasında zorluklar yaratsa da, yenilikçi bir çözümle yağmur suyu yönetimini de içeren bir yaklaşım benimsenmiş. Otopark alanı, doğal çevreyle uyumlu olacak şekilde peyzajın bir parçası olarak tasarlanmış.




























