Kuakata Eğitim Merkezi
Künye
Mimari Tasarım
CODEC
Proje Yeri
Kuakata, Bangladeş
Tasarım Ekibi
H.M Hossenur Rahman, Nowshin Matin
Mühendislik Ekibi
Md. Sauban Masud, Sheikh Tanzibul Rahman
Toplam İnşaat Alanı
682 m²
Tamamlanma Tarihi
2024
Fotoğraflar
Asif Salman
Bangladeş’in kıyısında CODEC Design Studio tarafından tasarlanan Kuakata Eğitim Merkezi, iklime duyarlı mimariyi odağına alarak topluluk aidiyetini güçlendiren sürdürülebilir bir öğrenme alanı sunuyor.
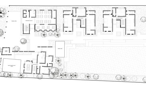
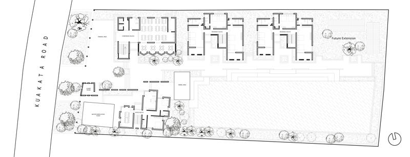
CODEC Design Studio tarafından tasarlanan Kuakata Eğitim Merkezi, Bangladeş’in kıyı topluluklarını desteklemek amacıyla inşa edilen özel bir tesis. Balıkçı yerleşimlerine, ekolojik bölgelere ve turistik güzergahlara yakın konumuyla tesis, kıyı kaynaklarının yönetimi, sürdürülebilir turizm ve afet hazırlığı konularında konaklamalı eğitim programları sunuyor. Aşamalı bir inşa süreci ile geliştirilen proje; nitelik, sürdürülebilirlik ve bağlamsal uygunluğu ön planda tutuyor. Yerel müteahhitler ve işçilerin sürece en başından dahil edilmesi, yalnızca yapım sürecinin verimliliğini değil, aynı zamanda bilgi aktarımını ve topluluğun merkeze aidiyetini de güçlendiriyor.
İklimsel dayanıklılık, tesisteki yapılara olan mimari yaklaşımın merkezinde yer alıyor. Kuakata’nın kasırga, taşkın ve tuzlu su istilasına karşı hassas konumu göz önüne alındığında, yapılar mevsimsel su yükselmelerine karşı dayanıklı olacak şekilde yükseltilmiş platformlar üzerinde tasarlanmış. Yine iklimsel dayanıklılık bağlamında; yapılarda kullanılan pasif soğutma stratejileri, mekanik sistemlere olan bağımlılığı azaltıyor. Tesisin güney cephesinde yer alan uzun su yüzeyi, yeraltı sularının genellikle tuzlu ya da arsenikle kirlenmiş olduğu bölgede tatlı su rezervuarı işlevi görüyor. Aynı zamanda, bu su kütlesi güneyden gelen rüzgarları soğutarak iç mekanın termal konforunu artırıyor. Doğal havalandırma ve gün ışığı kullanımı, jali (delikli tuğla veya taş) ekranlar aracılığıyla optimize ediliyor; böylece bu elemanlar güneş ışığını filtreleyerek ısı kazanımını azaltıyorlar. Yapısal olarak, tesiste yerel üretim tuğlalardan oluşan taşıyıcı duvarlar, betonarme kiriş ve döşemelerle birleştirilmiş. Bu birleşim, kasırga riski yüksek bölgelerde uzun ömürlü ve dayanıklı bir yapı sistemi sunuyor.
İç mekan kurgusu, farklı programatik gereksinimleri karşılayacak biçimde tasarlanmış. Sınıflar ve seminer salonlarının yanı sıra, tesiste katılımcılar ve eğitmenler için konaklama birimleri, yerel ve taze ürünlerin ön planda olduğu yemek alanları ile çok amaçlı toplanma mekanları bulunuyor. Açık avlular, gölgelikli geçiş yolları ve peyzaj düzenlemeleri, gündelik etkileşim ve dinlenme için mekansal olanaklar sunarak öğrenme ortamı içinde topluluk hissini güçlendiriyorlar.
Sonuç olarak, Kuakata Eğitim Merkezi yalnızca bir kurum olarak değil; eğitimi, çevresel kaliteyi ve toplumsal gelişimi birbirine dokuyan dönüştürücü bir mekan olarak kurgulanmış. Katılımcı yapım süreci, iklime duyarlı tasarımı ve sürdürülebilir işletme yaklaşımıyla Kuakata Eğitim Merkezi, dayanıklı kıyı yerleşimleri için örnek bir model teşkil ediyor.




































©Iwan Baan