KLEE Sapanca
Künye
Proje Yeri
Sapanca, Sakarya
Proje Ofisi
the | work
Mimari Ekip
Büşra Koçak , Berk Arinç , Güliz Damla Çınar
Yardımcı Mimar
Hande Özdemir
Ana Yüklenici
the | work
Tamamlanma Tarihi
2025
Toplam İnşaat Alanı
650 m2
Sakarya’da yer alan, the | work tarafından tasarlanan KLEE Sapanca, kendi dokusunu kurarken çevresine uyum sağlayan bir proje olarak geliştirilmiş.
Sapanca Gölü havzasında bulunan Bağdat Caddesi ve çevresi; bahçeli müstakil tekil konut alanları, kentsel boşlukları, cadde genişlikleri, peyzaj düzenlemeleri ile doğal çevrenin korunmasına yönelik alınan örnek planlama kararlarının yanında; günden güne çoğalmakta olan ticari fonksiyonları, yeme içme alanları, ve konaklama birimleri ile sosyal donatı gelişimini hızla sürdürerek bölgenin en önemli ana arteri konumuna gelmiş.
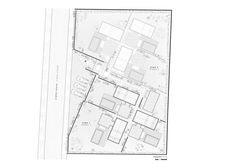
KLEE Sapanca, Bağdat Caddesi’nin hemen başında yer alan, bölgenin kısa süreli konaklama ihtiyacına yönelik kendi içerisinde dokulanan; çevresi ile uyumlu, kalıcı, altı tekil yapı biriminden oluşan bir proje olarak geliştirilmiş. Projenin iki etaplı olarak yapılması planlanarak, yerleşim ve yaklaşım kararları buna göre belirlenmiş. Parselin; cadde, manzara, ışık, mahremiyet gibi konular ile ilişkisi gözetilerek; tekrarlı birimlerin organik bir çoğalmayla farklı yöneliş, yükseliş ve açılarla birbirlerine yakınlaşarak bir araya gelmesi ve bu bir araya gelişin çevre ile uyumunun sağlanmasına önem gösterilmiş. Böylelikle; ortaya çıkan bu vaziyet yerleşimi ve birim yapılar arasındaki ilişkinin getirdiği dokulanmanın mevcut silüet içerisinde yok olması amaçlanmış. Proje; bitişik/yakın olma durumunu, zemin hareketi üzerinden yeniden ele alarak; geçirgenlik, sokak, pasaj, koridor, peyzaj çözümleri ile vaziyet yerleşimini tamamlamış.
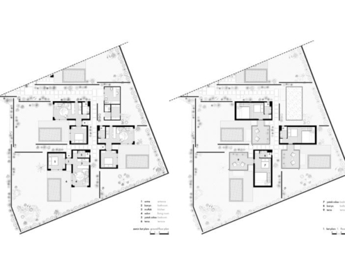
Her biri müstakil, altı birimden oluşan bu iki katlı kütleler, merkezdeki karşılama birimi ile irtibatlandırılan; zemin katında mutfak, banyo ve galerili oturma alanı, üst katında ise asma katlı oda yer alan ana kütle ile zemin katında oda birimi ve üzerinde açık terastan oluşan, parçalanmış üç ayrı kütlenin birleşimi şeklinde tasarlanmış. Kendi plan şeması içerisinde birbirinden ayrılan farklı yüksekliklerdeki bu kütlelerin sağladığı silüet etkisi; mahremiyet, şeffaflık, içe dönüklük, çevre ile ilişki gibi konular üzerinden oluşturulmaya çalışılan çeşitliliğin artırılmasını sağlamış.






























































