Helix – Post Headquarters
Künye
Mimari Tasarım
Metaform
İşveren
Post Group Luxembourg
Tamamlanma Tarihi
Temmuz 2023
Toplam İnşaat Alanı
42.000 m²
Fotoğraflar
Simon Menges
Metaform tarafından tasarlanan Helix – Post Headquarters, tescilli Accinauto yapısını yeni taş kaplı kütleyle bütünleştirerek, miras, sürdürülebilirlik ve çağdaş çalışma mekanını yoğun bir kentsel bağlam içinde dengeli bir mimari diyalogla bir araya getiriyor.
Lüksemburg’un canlı Gare bölgesinde yer alan Post Luxembourg Genel Merkezi, 22.370 metrekarelik çalışma, toplantı ve kamusal alan içerisinde yaklaşık 1.000 çalışanı bir araya getiriyor. Proje, tescilli Accinauto binasının restorasyonu ile yeni taş kaplı yapıyı bütünleştirerek güçlü ancak dengeli bir kentsel yapı oluşturuyor. Cephede ritim ve derinlik yaratan düşey doğal taş kanatlar, merkezi atrium ve spiral merdivenle birlikte açıklık, iletişim ve süreklilik kavramlarını mekansal olarak güçlendiriyor. Yerel malzemelerle inşa edilen ve uzun ömürlü olacak şekilde tasarlanan yapı, yoğun kentsel doku içinde geçmiş ile gelecek arasında doğal bir bağ kuruyor.
Proje, Lüksemburg’un yoğun Gare bölgesinde yüksek sayıda çalışan için geniş bir merkez oluşturmayı, miras yapılar, aktif kentsel çevre ve iddialı sürdürülebilirlik hedefleri arasında denge kurarak ele aldı. Dikey bir simge yapı üretmek yerine, tasarım stratejisi geçmiş ve bugün, açıklık ve ölçülülük, kent ve çalışma ortamı arasındaki diyaloğa odaklanmış. Tescilli Accinauto yapısının korunması ve genişletilmesi, çevreyle sürekliliği sağlarken yıkımı ve karbon etkisini de önemli ölçüde azaltmış. Mevcut yapıların yeniden kullanımı, aktif döşemeler, bitişik veri merkezinden ısı geri kazanımı, yağmur suyu geri dönüşümü ve fotovoltaik paneller gibi sürdürülebilir stratejiler yapının çevresel performansını güçlendirmiş.
İç mekanda, tüm katlar boyunca uzanan merkezi atrium ve spiral merdiven, çalışma alanlarını organize ederek açıklık, iletişim ve mekansal süreklilik sağlıyor. Ortaya çıkan yapı, çevresindeki hareketli kentsel bağlam ile iç mekanda tanımlanan netlik, ışık ve dinginlik arasında arabulucu bir rol üstlenen kamusal nitelikli, sürdürülebilir bir ofis yapısı sunuyor.
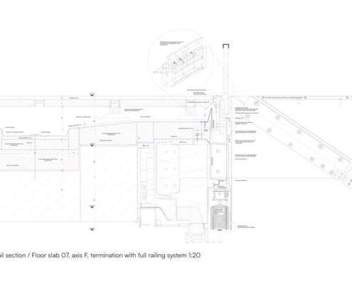
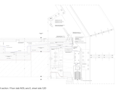
Yapı, betonarme taşıyıcı sistemle inşa edilirken cephelerde ahşap-alüminyum doğramalar ve ritim, gölgeleme ve kalıcılık sağlayan düşey doğal taş kanatlar kullanılmış. İç mekanlarda doğal taş, meşe ve çelik malzemeler bir araya gelerek dengeli ve dokunsal bir atmosfer oluşturuyor. Projenin en başından itibaren sürdürülebilirlik temel bir tasarım girdisi olmuş. Mevcut temellerin ve bodrumların yeniden kullanılmasıyla 8.600 metreküpten fazla beton ve yaklaşık 2.600 ton karbon salımı tasarrufu sağlanmış. Yerel malzeme kullanımı, nakliye kaynaklı emisyonları da önemli ölçüde azaltmış. Dayanıklı doğal malzemeler ve modüler cephe sistemi, yapının uzun vadeli dayanıklılığını ve düşük bakım gereksinimini güvence altına alıyor.
DGNB Platinum sertifikasına layık görülen yapı, ekolojik, ekonomik, sosyo-kültürel ve teknik kriterlerdeki üstün performansıyla ayrıca Almanya dışındaki ilk proje olarak DGNB Diamond ödülünü almış. Helix, kurumsal mimarlığın kent içindeki rolünü yeniden tanımlayarak, ikonik bir jest yerine süreklilik, sorumluluk ve bağlamla kurulan bilinçli bir ilişki üzerinden güçlü bir mimari duruş sergiliyor.

















©Adria Goula