Gate M West Bund Dream Center
Künye
Mimari Tasarım
MVRDV
Proje Yeri
Şangay, Çin
Sorumlu Ortak
Jacob van Rijs
Proje Ortağı
Wenchian Shi
Proje Ekibi
Kyo Suk Lee, Peter Chang, Sredej Bunnag, Luca Xu, Shanshan Wu, Yunxi Guo, Albert Parfonov, Amanda Galiana Ortega, Americo Iannazzone, Dorota Kaczmarek, Echo Zhai, Edvan Ardianto, Haocheng Yang, Jiameng Li, Jiani You, Kevin Zhao, Kristina Knauf, Meng Yang, Ming Kong, Martin Chen, Sen Yang, Shushen Zhang, Siyi Pan, Steven Smit, Tanja Dubbelaar, Xiaoliang Yu, Yayun Liu, Yihong Chen, Evan O’Sullivan, Peilu Chen
MVRDV Şanghay Direktörü
Peter Chang
İşveren
Hua Zhi Men Capital
Eş Mimar
AISA
Peyzaj Tasarımı
Field Operations
Statik Proje
ARUP, AISA
Cephe Danışmanı
RFR
İç Mekan Tasarımı
CL3, Xu Studio
Aydınlatma Tasarımı
RDI
Görselleştirmeler
Antonio Luca Coco, Jaroslaw Jeda, Luca Piattelli, Marco Fabri, Stefania Trozzi
Tamamlanma Tarihi
2025
Toplam İnşaat Alanı
45.000 m²
Fotoğraflar
Xia Zhi, Liu Guowei, Tian Fangfang, Sanqian Visual Image Art
MVRDV tarafından tasarlanan Gate M West Bund Dream Center, Şangay’ın eski çimento fabrikasını, ikonik yapıları ve turuncu sirkülasyon elemanlarıyla dönüştürerek kamusal, kültürel ve ticari işlevleri birleştiren yenilenmiş bir kent parçasına dönüştürüyor.
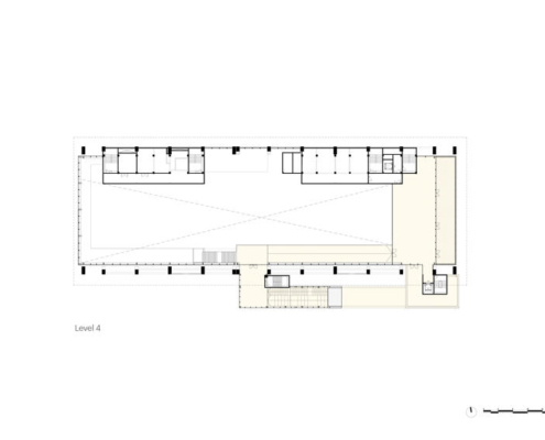
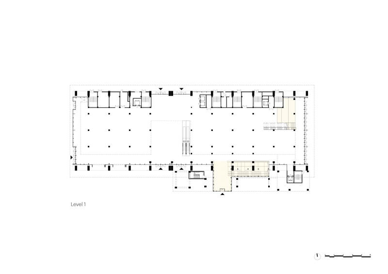
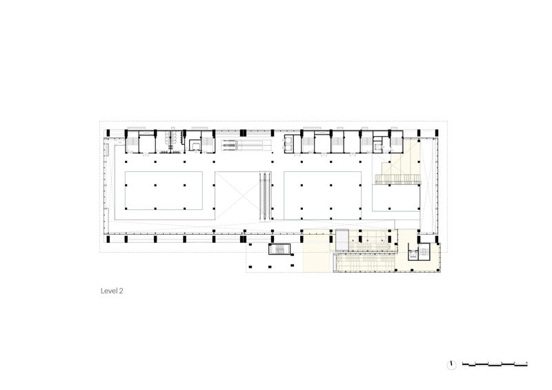
MVRDV’nin tasarımıyla hayata geçirilen Gate M West Bund Dream Center, bir zamanlar Asya’nın en büyük çimento fabrikası olan alanı; alışveriş, yeme-içme, etkinlik ve kültürel faaliyetlerle dolu yeni bir kentsel alana dönüştürmüş. Farklı dönemlere ait mevcut yapıların yeniden işlevlendirilmesiyle oluşturulan bu proje, yıkımı tercih etmeyip karbon salımını ve inşaat atığını azaltmayı amaçlıyor. Proje, mimari kimliğini dış cephelerde kullanılan dikkat çekici turuncu sirkülasyon elemanlarıyla vurguluyor. Ziyaretçilerin alışveriş yapabileceği, yemek yiyebileceği, paten kayabileceği, tırmanabileceği, sergi ve etkinliklere katılabileceği veya nehir kıyısında vakit geçirebileceği bu alan, şimdiden yerel halk ve turistler arasında popülerlik kazanmış ve çok sayıda ödül kazanmış.
Gate M Dream Center’ın bulunduğu alan, Expo 2010 kapsamında kentin bu bölümünde sanayiyi taşımaya karar veren yerel yönetimce yeniden değerlendirilmişti. MVRDV, projenin tüm masterplanını ve özellikle güney yarısındaki mimari projeleri üstlendi. Alanın kuzey kısmındaki ticari yapılar Atelier Deshaus, West Bund Dome Sanat Merkezi ve yeni Shanghai West Bund Tiyatrosu ise Schmidt Hammer Lassen tarafından tasarlandı. MVRDV, tasarım sürecinde endüstriyel mirası koruma hedefiyle hareket etti. Yıkım yerine, var olan yapılar yeni işlevlerle yeniden yorumlandı. Büyük silo ve fabrika yapıları proje alanının odak noktaları hâline getirildi. Bu anıtsal beton kütleler, dış cephelerine eklenen turuncu merdivenler ve asansörlerle dikkat çekerken, endüstriyel geçmişi çağdaş bir dile dönüştürüyor.
M Factory’nin zemin katında BLOOMARKET adlı gıda pazarı ve fine-dining alanı yer alırken, üst katta sergilerden konferanslara, moda şovlarından sahne performanslarına kadar çok yönlü kültürel etkinliklere ev sahipliği yapabilecek geniş bir kolonlardan arındırılmış alan bulunuyor. Diğer yanda, silo yapısı iç mekânda bir tırmanma merkezine dönüştürülmüş; dış cephedeki turuncu tırmanma rotalarıyla çatıdaki seyir terası ve balkonlara ulaşım sağlanıyor. Tamamlanmamış diğer yapılar; yeşil çatılar, açık teraslar ve sade cephelerle donatılarak mağaza, restoran ve otel işlevleriyle tamamlanmış. Field Operations tarafından tasarlanan peyzaj düzenlemesi ise nehir kenarındaki konumu avantaja çeviren bir kamusal alan yaratıyor.
Bu dönüşüm, şehrin batı kıyısındaki ilk aktif ve canlı kamusal mekanlardan birini oluşturdu. M Factory’nin devasa iskeleti, gerçekleşen etkinlikler için bir cazibe merkezi hâline gelirken, proje; China Urban Renewal Annual Award, Shanghai Excellent Urban Regeneration Projects Awards ve IDEAT China Future Awards gibi ödüllere layık görüldü. MVRDV bu projeyle, günümüzde birçok büyüyen kentin karşı karşıya olduğu bir meseleyi ele alıyor: Terk edilmiş sanayi alanlarının yeni kentsel bağlamlara nasıl uyum sağlayabileceği.















































































