Feyzalmak
Şengül Öymen Gür (1), Prof. Dr.
TDK’ya göre feyzalmak,”etkilenmek, olgunlaşmak, ders almak” anlamına gelirmiş. Aslında başka bir konuda yazacak olsaydım, “esinlenmek” sözcüğünü yeğlerdim. Ama konu cami olunca feyzalmak sözcüğü sanki daha uygun düştü.
Doğa, başından beri mimarlık için bir ilham kaynağı olmuştur. Gerek biçimlerinden, gerek doğal malzemelerin işlenmiş/işlenmemiş olarak kullanılmasından… Diğer yandan fiziksel ve kimyasal süreçlerin, yapı/yapım teknolojilerinin bütünleşmesinden yola çıkılarak yapılandırılmış çevre ile doğal çevre arasındaki ilişkileri araştırmak her zaman anlamlı ve güncel olmuştur. Ayrıca doğa, manzaraları ve huzur verici atmosferleriyle de mimari tasarımlar için değerli bir esin kaynağı sunar.
Esinlenmek mimari tasarımda yasak değildir. Özellikle mimarlık eğitiminde çok yararlıdır (2). Ancak doğal olarak esinlenme eylemi; doğa, kent, toplum, insan/kullanıcı, kentsel/kırsal dolaşım kalıpları gibi asal verilerin bilgisi ve mimarlık tarihi birikimi, amaç-erek-sonuç üçgeninin bilişsel muhakemesi ve sonucu öngörme tecrübesiyle yapılırsa esinlenme yasaldır (caizdir!) ve çok yararlıdır. Ancak bu işlemde yorum yeteneği zorunludur. Aksi halde ürün bir replika veya pastiş olmaktan öteye gidemez!
Örnekleme
Dört ayaklı mescitler ve minareler, harikalar yaratır. Şeyh Mutahhar Camii’nin minaresi dört ayaklıdır. Camii şu adlarla da anılmaktadır: Şeyh Mattar Camii, Dört Ayaklı Minare Camii, Kasım Bey Camii, Kasım Padişah Camii. Diyarbakır da 1500 yılında Akkoyunlu beylerinden Kasım Bey tarafından inşa ettirilmiştir (3), (Resim 1, 2). Dört ayağın dört İslam mezhebini simgelediği rivayet edilir (4).

Resim 1. Şeyh Mutahhar Camii, 1500’lü yıllar, Diyarbakır (Fotoğraf: Ayhan Karadayı).

Resim 2. Şeyh Mutahhar Camii, 1500’lü yıllar, Diyarbakır (Fotoğraf: Ayhan Karadayı).
Cami çok başarılıdır. Çünkü muhteşem bir belik ile tanımlanmış bir açık alan yaratarak, insanı-halkı oraya odaklayarak bir sosyal açık alan yaratmakta; bir tür tevhit sağlamaktadır. Aslında bu tasarım ilkesi tüm Anadolu ve hatta Lefkoşe/Kıbrıs hanlarında da uygulanmıştır. Bence, inanılmaz bir tasarım şiarı!

Resim 3. Lefkoşa Büyük Çarşı, Han (Fotoğraf: Şengül Öymen Gür).
Diğer yandan Şeyh Mutahhar Camii’ne bir nazire gibi görünen Rize, Pazar İlçesi Müftülüğüne bağlı Suçatı Köyü İskele Camii çok başarısız bir öykünme olup anlayamadığımız bir nedenle yapılmış bir tercihtir (5), (Resim 4). Minareyle birlikte bir sundurma yaratma isteğinden kaynaklanmış olabilir (6).

Resim 4. Suçatı Köyü İskele Camii (Fotoğraf: Ayhan Karadayı).
Bu kısa metinde başarılı bir feyz örneği tanıtmak istiyorum. Aslında benim ilgi alanım insan/toplum/mimari şeklinde özetlenebilir. Camiler özel ilgi alanım değildi, ta ki Serap Durmuş ile bir yüksek lisans tez çalışması yapana kadar (7). Aslında cami, orada da ana tema değildi. Yapıbozumcu okumaya çok elverişli bir camiyi örnek olarak kullandık: Vedat Dalokay’ın Kral Faysal Cami’sini… Hani şu Turgut Cansever’in “Kubbeyi yere koymamak” diyerek eleştirdiği… Ama bu çalışmada doğal olarak dönemlerin cami örneklerini, Sinan’ı ve tüm postmodern camileri incelemek zorunda kaldık ve bu bilgileri analitik mantık çerçevesinde yurt dışında tanıttık (8). Ancak bu ülkenin cami stokunu tüketmek olanaksız…
1990-1992 yılları arasında iki yıl süren, yirmi altı kişinin görev aldığı ve sonuçları altı cilt şeklinde DPT kitaplığında bulunan Doğu Karadeniz Bölgesi araştırmalarım sırasında tavsiye üzerine Çarşamba’dan biraz içeri girerek bir camiye vardık.
Sekiz yüzyıl önce “kurtağzı” tekniği ile yapılan Göğceli Çivisiz Cami, bölgede meydana gelen depremlerden etkilenmeden yıllara meydan okurcasına dimdik ayakta duruyor. Yapımında duvarlarda, direklerde, direk başlarında, kirişlerde, merteklerde, mahya aşığı gibi yapının birçok yerinde karaağaç, dişbudak, kestane gibi ağaçlar kullanılmış. Duvarlarda tek parça olarak kullanılan kalaslar yaklaşık on beş, on sekiz santim kalınlığında; elli, yetmiş santim eninde ve yaklaşık on iki, yirmi metre uzunluğunda. Yapıda dövme demir çivi, sadece direk başlarının kirişlere bağlantısında ve revak bölümlerine doğru uzanan merteklere yapılan eklerde kullanılmış. Üç omuzlu çatının taşıyıcıları; ahşap duvarlar ve dikmeler. Alttaki derinlik yapının hava almasını, nemi ve çürümeyi önlemek için açılmış (9), (Resim 5, 6).

Resim 5. Göğceli Çivisiz Cami.

Resim 6. Göğceli Çivisiz Cami.
Bu kısa metinde bu şaheser mimariyi esin kaynağı olarak almış gibi görünen bir yakın tarihli cami tanıtacağım. Doç. Dr. Halil İbrahim Düzenli’den edindiğim bilgiye göre; Samsun Üniversitesi Ballıca Kampüsü’nde yaklaşık kırk yıllık tütün hangarlarının eğitim amaçlı binalara dönüşümü devam ediyor. Bu dönüşüm projesi gerçekleşirken mekan hafızasını korumak, ömrü dolmamış her malzemeyi tekrar kullanarak geri dönüşümünü sağlamak gibi ilkelere sığınılarak ülkemize ve dünyaya örnek olacak bir kampüs inşa edilmek isteniyor. Zamanın ruhuna uyumlu, çevreci ve işlevsel bir kampüsün önemli adımları atılıyor. Bu ilkelerle, biner metrekarelik toplam altmış adet olan hangarın otuzu yeniden işlevlendirilerek kullanıma açılıyor. Bunlar arasında Mimarlık ve Tasarım Fakültesinin birinci ve ikinci hangarları Mimarlık Ödülü alıyor. Tasarımlar büyük özenle “Tasarım, Mimarlık ve Şehir Çalışmaları Uygulama ve Araştırma Merkezi” (SAMÜ TASMİM) bünyesinde Dr. Abdullah Asım Divleli, Doç. Dr. Halil İbrahim Düzenli, Dr. Melek Kutlu Divleli, Dr. Emin Selçuk Taşar tarafından; uygulama projeleri ise Mi’mar Mimarlık tarafından yapılıyor. Rektör Prof. Dr. Mahmut Aydın bu projelere tam destek veriyor ve yakından takip ediyor. Cami de bu dört mimar tarafından tasarlanıyor. İnşaatı, iş insanı Fahrettin Ulusoy adına eşi Nevin Ulusoy, çocukları Eren Günhan Ulusoy ve Onur Erhan Ulusoy tarafından finanse ediliyor.
Birçok kurumda olduğu gibi bir mescit yetebilecekken gittikçe büyümesi hedeflenen bu kampüse bir cami yapılması yeğleniyor. Caminin yer seçimi ve konumu, dikkat çekici bir biçimde, bir yanda mevcut yerleşim düzenine uyum sağlarken kıble yönüyle de ilişkili olarak hafifçe çarpıtılarak mevcuda bir tür başkaldırı gibi ele alınıyor (Resim 7). Düşünüyorum da gerçek İslam’ın kapsayıcı özelliği, katı ve normatif bir yapısal çevre ile uyumlu olamazdı! Olmamalıydı zaten!

Resim 7. Samsun Üniversitesi Fahrettin Ulusoy Camii konum planı (Foto: Furkan Al).
Doğal olarak bir caminin tasarımını bütünlük, çokluk/çeşitlilik, hareket, her yöne açık olma gibi kavramlar ve yapı malzemelerinin özgün tektonik karakterleri ile oluşturulmalıydı. Biçimsel feyzini Çarşamba Göğceli Camii’nin kurgusundan alan bu camide tek bir çatı altında yirmi ayrı alt-mekan toplandı (Resim 8, 9).

Resim 8. Samsun Üniversitesi Fahrettin Ulusoy Camii’nin dar cepheden görünüşü (Fotoğraf: ©Furkan Al).

Resim 9. Samsun Üniversitesi Fahrettin Ulusoy Camii geniş cepheden görünüş (Fotoğraf: ©Furkan Al).
Ana mekan, birliğin çokluğu/çokluğun birliği gibi yordanabilecek bir paradigma yeğlenerek kurgulandı (Şekil 1-3).

Şekil 1. Samsun Üniversitesi Fahrettin Ulusoy Camii vaziyet planı (Kaynak: SAMÜ TASMİM).

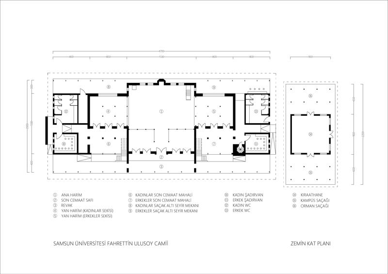
Şekil 2. Samsun Üniversitesi Fahrettin Ulusoy Camii zemin kat planı (Kaynak: SAMÜ TASMİM).

Şekil 3. Samsun Üniversitesi Fahrettin Ulusoy Camii birinci kat planı (Kaynak: SAMÜ TASMİM).
Hareket kavramı ikinci çok önemli paradigmaydı; insanın yürüyüşü esnasında biriktirdiği tüm algılam ve duygulamların fenomenolojik bütünlüğü aksatmadan, sürekliliği sağlayan ögeleri göz ardı etmeden ve çevrenin sürekli değişimiyle sonsuza yolculuğu anımsatan bir duygulanım, uygun tasarım ve ayrıntılarla sağlanıyor burada ve kişinin iç yolculuğuna zemin hazırlanıyor… Güzergahlar ve kesişim noktaları varoluşun çeşitli hallerine olanak hazırlayan ilginç ve duygusal ögeler sunarak tercihlerle dolu bir yol, bir iç yolculuk sunuyor (Resim 10-13). Bunu sevdim!

Resim 10. İnanılmaz bir ahşap işçiliği (Fotoğraf: Furkan Al).

Resim 11. “İçi dışı bir” bir cami (Fotoğraf: Furkan Al).

Resim 12. Bu kadar yakın olmak doğaya… Bir parçası olduğumuzu duyumsamak! (Fotoğraf: Furkan Al).

Resim 13. Hiçbir ayrıntıyı atlamadan… (Fotoğraf: Furkan Al).
Notlar
- Beykent Üniversitesi öğretim üyesi ve CICA üyesi.
- (https://yapidergisi.com/kulucka-beykent-universitesi-mimarlik-bolumu/)
- Keleş, H. (2015), Anadolu’da Akkoyunlu Kültür Mirasi: Tarihi Eserler, http://www.hbvdergisi.gazi.edu.tr/index.php/TKHBVD/issue/view/46
- Söylencenin kaynağı bilinmemektedir.
- Çadırcı, A., (https://cami.ahmetcadirci.com›rize)
- Suçatı köyünün eski adı Apso’dur. Köy Karadeniz Sahiline 10 km, Rize merkeze 47 km mesafededir. Köyde içme suyu ve kanalizasyon şebekesi yoktur. Köyün ekonomisi tarım ve hayvancılıktır. Köyde ilköğretim okulu vardır ama kullanılmamaktadır. Taşımalı eğitimden yararlanılmaktadır.
- Durmuş, S., Dini Mekânlarda Yapıbozumcu Bir Okuma: Kral Faysal Cami, Yüksek Lisans Tezi, KTÜ Fen Bilimleri Enstitüsü, Trabzon, 2009.
- Gür, Ş. Ö and Durmuş, S., Deconstruction as a Mechanism of Creativity and its Reflections on Islamic Architecture, ARCHITECTURE JOURNAL, Architectoni.ca, Volume 1, No. 1 (2012); pp.32-45. (http://ccaasmag.org/arch_2012/vol1/Gur&Durmus_creativity.pdf
- (https://www.kulturportali.gov.tr/turkiye/samsun/gezilecekyer/gogceli-camii); (https://www.carsamba.bel.tr/icerik/tarihi-gogceli-camii)


