Colombian Hebrew School
Künye
Mimari Tasarım
Aarón Cohen, Angélica Mejía, Camilo Sellamén, Camilo Fuentes, Joel Amón
Proje Yeri
Bogotá, Kolombiya
Statik Proje
SRC Ingenieros Civiles S.A.
Aydınlatma Tasarımı
Maria Teresa Sierra
Elektrik Projesi
Supplies de Colombia S.A.S. Powel Ingeniería y Servicios S.A.S.
Statik Proje
SRC Ingenieros Civiles S.A. – Julián Ocampo
Mekanik Proje
Capitalaires Ingeniería y Confort
Zemin Etüdü
Alfonso Uribe & Cia S.A.
Akustik Tasarımı
Aqstica S.A.S.
Peyzaj Tasarımı
Groncol Inforest Consultores Ambientales S.A.S.
Biyoklimatik Danışmanlık
Andrés García Ingeniería Bioclimática y Sostenible
Marka ve Mural Tasarımı
Sofía López
Toplam İnşaat Alanı
4,294 m2
Tamamlanma Tarihi
2024
Fotoğraflar
Alejandro Arango, Sitio Estudio
Bogota’daki Colombian Hebrew School, Aarón Cohen ve ekibinin tasarımıyla kampüsü akademik, sportif ve sosyal alanları bütünleştiren çağdaş bir öğrenme ortamına dönüştürüyor.
Bogota’daki Colombian Hebrew School yenilenmesi, son kırk yılda üst ölçekli bir plana bağlı olmadan büyümekte olan kampüsün önümüzdeki elli yılını yeniden planlamak için bir fırsat olarak görülmüş. Planın gerçekleşebilmesi için arazinin yaklaşık üçte birinin satılması gerekmiş; bu da kampüs içindeki yeni binaların yerleşiminin bütünüyle yeniden kurgulanmasını zorunlu kılmış.
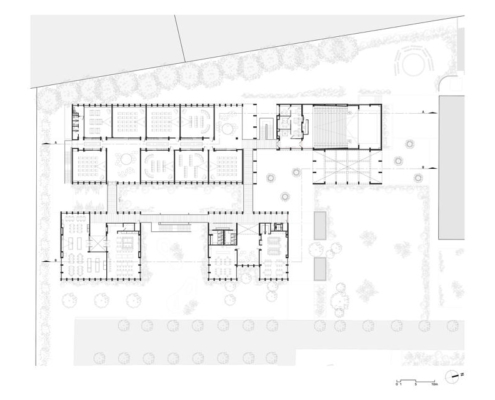
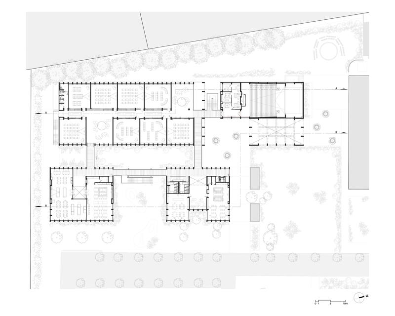
Orijinal yerleşim planında binalar, merkezi bir yol boyunca işlevsel bir programa göre dağınık biçimde konumlandırılmış. Tasarımcılar, geniş yeşil alanlara sahip kampüste, yapıların birbirinden kopuk yerleşimi nedeniyle parçalı bir mekansal algı olduğunu aktarıyor. Yeni master plan bu sorunu radikal biçimde ele alarak kampüsü üç net işlevsel alana ayırıyor: Akademik birimler, spor tesisleri ve servis yapılarının tümü yeşil alan etrafında bütünleşiyor. Merkezi yol ise söz konusu binaları birleştiren görkemli bir promenada dönüştürülüyor.
Program dört belirgin binaya dağıtılmış durumda; bunlar hafif yapılarla birbirine bağlanıyor ve merkezi avlu ile atriyumda birleşiyor. Atriyum, önerilen tüm yapılar arasında en simgesel alan olarak öne çıkıyor. Toplumun tarihine ve geleneklerine duyduğu saygı ve ciddiyetin sembolü olan bu mekan, hem hiçbir şeyin hem de her şeyin yaşandığı bir alan olarak dünyevi olanla kutsal olan arasındaki bağ üzerine düşünmeye davet ederken öğrenme ve bilgi dünyasına geçişi temsil ediyor. Çift kat yüksekliğine sahip bu alan, öncesinde yapılan binalarla ölçek açısından tezat oluşturuyor; fakat akademinin halkın mirasını korumadaki önemini yücelten törensel ve saygı dolu bir atmosfer sunuyor. Köprüler, koridorlar, avlular, meydanlar ve yeşil alanlarla birbirine bağlanan binalarda derslikler, çok amaçlı mekanlar, idari ofisler, kütüphane, laboratuvarlar, sanat atölyesi, üretim laboratuvarı (STEM), müzik odası ve bir oditoryum gibi birimler yer alıyor.
Bu proje yalnızca okul kampüsünün fiziksel yenilenmesini sağlamakla kalmıyor, aynı zamanda öğrenmeyi teşvik eden, topluluk bağlarını güçlendiren ve Yahudi kültürel mirasını pekiştiren bir ortam yaratıyor. Her köşe, bu topluluğun tarihini ve gelecek hedeflerini yansıtıyor.

























































