Cloud House
Künye
Mimari Tasarım
ROOM+ Design & Build
Proje Yeri
Ho Chi Minh, Vietnam
Tasarım Ekibi
Vinh Phuc Ta, Bao Loc Hoang, Tan Trung Ta, Duc Truong Nguyen, Ngoc Phi Duong, Trung Dat Diep
Toplam İnşaat Alanı
360 m²
Tamamlanma Tarihi
2025
Fotoğraflar
Sonmeo Nguyen Art Studio
ROOM+ Design & Build tarafından tasarlanan Cloud House; Ho Chi Minh’in kalbinde, ferahlık, mahremiyet ve topluluk duygusunu bir araya getiren modern bir ortak yaşam deneyimi sunuyor.
Vietnam vatandaşları, son yıllarda yükselen konut fiyatları nedeniyle sağlıklı konutlarda yaşamayı karşılamakta güçlük çekiyor; bu da toplumun orta gelirli kesiminin tipik tüp evlerin içerisinde sıkışık ve konforsuz alanlarda yaşamalarını zorunlu kılıyor. Bu nedenle, sakinlerin yaşam kalitesini iyileştirirken aynı zamanda finansal olarak ulaşılabilirliği sağlamak, şehir içi kiralık ortak yaşam projelerinin tasarımında kritik bir ikili hedef haline gelmiş. Cloud House, Ho Chi Minh şehrinin yoğun kentsel bölgelerinden birinde, ortak bir yaşam alanı olarak tasarlanmış. Çeşitli boyut ve yükseklikteki birçok yapı ile çevrili, yetmiş metrekarelik arsa, dört metre genişliğinde bir ara sokağın yanında yer alıyor. Tasarım önerisi, birbiriyle bağlantılı üç kavramdan yola çıkıyor: Çağdaş loft tarzı özel daireler, çok işlevli yarı kamusal alanlar ve yüksek yoğunluklu kentsel bağlamda doğayla ilişki kuran mekanlar.
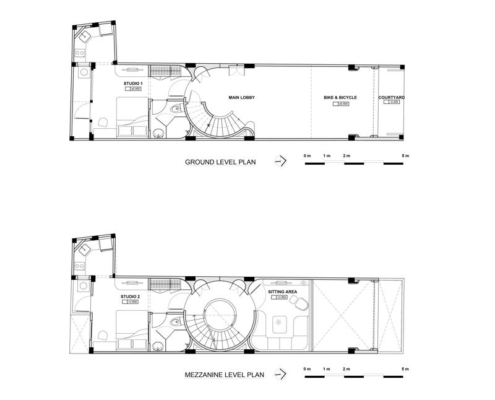
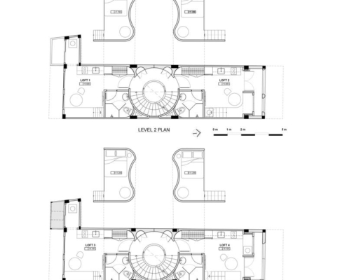
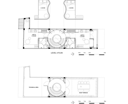
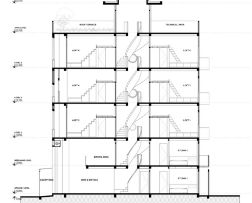
İlk olarak, altı adet loft ve iki adet standart stüdyo, nispeten küçük inşaat alanına düzgün bir şekilde yerleştirilmiş. Her kiralık dairenin giriş alanı ve banyosunun üzerine minimal bir loft alanı yerleştirilerek, üç buçuk metrelik kat yüksekliğinin kullanımını en üst düzeye çıkarmak ve ana yaşam alanına hem ferahlık hem de rahatlık sağlamak amaçlanmış. Sade bir malzeme ve renk paleti önerilmiş; oturma bankları, gardıroplar ve saklama dolapları gibi akıllı tasarım ögeleri ve çok işlevli mobilyalar, minimal ahşap merdivenler ve çelik çerçevelerden ve standart çimento levhalardan yapılmış hafif zeminler gibi ikincil yapısal unsurlarla uyumlu bir şekilde birleştirilmiş.
İkincisi, binadaki tüm yarı kamusal ortak kullanım alanları, sakinlere hem rahatlık hem de hayranlık uyandıracak şekilde tasarlanmış. Avlu ve zemin katın yarısı bisiklet ve motosiklet park yeri olarak kullanılırken geniş bir spiral merdiven binanın merkezi alanını kaplıyor ve sadece ilgi çekici bir dolaşım yolu olarak değil, aynı zamanda gündelik ve samimi bir etkileşim alanı olarak da işlev görüyor. Asma katta bulunan ortak oturma alanı ve çatı terası da sakinler tarafından keyifle kullanılan bir mekan. Bu ortak alanlar, aynı çatı altında yaşayan insanlar arasında bir topluluk duygusu yaratıyor.
Son olarak, çatıdaki ışıklık da dahil olmak üzere, ön ve arka cephelerde yer alan bir dizi eğrisel ve bulutsu açıklıklar ve pencereler, istenen manzaraları yapının iç mekanına dahil ederken gün ışığı ve doğal havalandırma ile bütünleşik bir tasarım sağlıyor; aynı zamanda mahremiyeti ve konforu da mümkün kılıyor. Bu sıradışı açıklıklar ve eğrisel iç mekan formları ile kurulan doluluk-boşluk, ışık-gölge arasındaki oyun, hayali bir doğaya bakışı vurguluyor. Bu sayede bina, sakinlerine kentin karmaşasından uzakta, sürekli değişen bulutların arasında dolaşıyormuş gibi dinamik ve keşfe açık bir mekansal deneyim sunuyor.










































Haikou Sahil Durağı ( ©ACF)