Bourg-la-Reine Kültür Merkezi
Künye
Mimari Tasarımcı
Dominique Coulon & Associés
Proje Yeri
Bourg-la-Reine, Fransa
İşveren
Bourg-la-Reine Belediye Konseyi
Statik Proje
Batiserf Ingénierie
Cephe Projesi
DBPM
Peyzaj Projesi
SPTP & TP
Akustik Projesi
Euro Sound Project
Aydınlatma Projesi
SATELEC
Proje Yönetimi
Lukas Unbekandt
Toplam İnşaat Alanı
2.550 m²
Tamamlanma Tarihi
2023
Fotoğraflar
Eugeni Pons
Dominique Coulon & Associés imzalı Bourg-la-Reine Kültür Merkezi, sıkışık kent parselinde ışık, geçirgenlik ve bağlantı üzerine kurulu mimarisiyle toplumsal yaşamı buluşturan çok işlevli bir merkez olarak tasarlanmış.
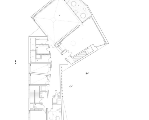
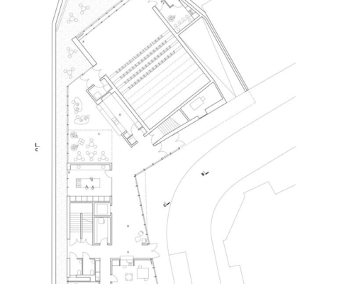
Bourg-la-Reine’deki kültür merkezi, bölgesel tren hattının geçtiği yüksek bir setin hemen yanında, dar ve L şeklindeki parsel üzerinde yer alıyor. Bu parsel, küçük ve gizli bir sokağa açılıyor. Böylesi bir arsa üzerinde kamusal bir merkez inşa etmek ilk bakışta ideal görünmese de, tasarım süreci bu zorluğu bir avantaja dönüştürmeyi amaçlamış. Bu nedenle yapı, hem tren hattının yeşil bitki örtüsüyle kaplı setiyle hem de komşu konutlarla uyumlu olacak, aynı zamanda da kamusal bir bina olarak öne çıkacak biçimde kurgulanmış. Bu projede temel kavram “bağlantı” olarak öne çıkıyor. 250 kişilik tiyatro salonu ve kulisleri, iki dans stüdyosu, dil ve müzik odaları, sergi alanı, gençlere yönelik alanlar, ebeveyn-çocuk etkinlik odaları, yaylı çalgılar ve görsel sanatlar atölyeleri, eğitim mutfağı, bar ve idari ofisler birbiriyle ilişkilendirilmesi gereken çok çeşitli işlevler olarak projenin kurgusuna yön vermiş.
Dominique Coulon & Associés, kapsamlı programın mekansal anlamda da aynı değerde bir ifade bulmasını hedeflemiş. Bu nedenle özellikle ortak alanların kalitesine özen gösterilmiş. Yapının giriş holü, yolun kıvrımına yerleştirilerek parselin L biçimli kolları birleşti ve insanların karşılaşmalarını teşvik eden, aynı zamanda cam yüzeylerle bitişik yeşil manzarayı içeri alan bir açıklık oluşturulmuş. Bu açık alanlar, farklı işlevleri birbirine daha iyi bağlamak üzere tasarlandı. Parselin sıra dışı geometrisi, iç içe geçen eğik formlar ve katlanmalarla çözümlenmiş. Mekanlar birbirine dolanıyor ve bu durum cephelere de yansıyor. İçeride, üç kat boyunca yükselen geniş bir açık alan; çift yükseklikler, seyir noktaları, geçitler ve asılı mekanlarla çoğalıyor. Bu birleştirici boşluk, projenin kalbinde bir referans noktası oluşturuyor. Üç kat yüksekliğe sahip bu hol, setin gölgesine rağmen gün ışığını yakalıyor; koridorlardan, üst kat geçitlerinden ve birinci kat buluşma alanından gökyüzü ve ağaçlara geniş çerçeveli manzaralar sunuyor.
Cephe boyunca uzanan büyük ölçekli pencereler, yapıya kamusal bir görünüm kazandırıyor. Bu açıklıklar kireçtaşı kütlede boşluklar açıyor ve projenin mekansal ve işlevsel zenginliğini dışarıya sergiliyor. Devasa pencereler, projenin cömert programını görünür kılıyor ve yapının doğal ışık, yeşil dokular, çapraz görüşler ve özgün atmosferlerle zenginleştiğini ima ediyor.














































