təməsew̓txʷ Aquatic and Community Centre
Künye
Mimari Tasarımcı
hcma architecture + design
Proje Yeri
New Westminster, British Columbia, Kanada
İşveren
City of New Westminster
Statik Proje
Fast + Epp
Mekanik Projesi
AME
Elektrik Projesi
AES Engineering
Cephe Projesi
hcma architecture + design
Peyzaj Projesi
PFS Studio
Akustik Projesi
RWDI
Maliyet Yönetimi
Ross Templeton
Aydınlatma Projesi
hcma architecture + design
Proje Yönetimi
Turnbull Construction
Toplam İnşaat Alanı
10.684 m²
Tamamlanma Tarihi
2024
Fotoğraf
Nic Lehoux
hcma architecture + design tarafından tasarlanan təməsew̓txʷ Aquatic and Community Centre, topoğrafyayla bütünleşen tek çatılı kütlesi ve karbon nötr enerji sistemiyle Kanada’nın ilk sıfır karbon belgeli kamusal yüzme tesisi oldu.
hcma architecture + design tarafından tasarlanan təməsew̓txʷ Aquatic and Community Centre, Kanada’nın Zero Carbon Building – Design Standard sertifikasına sahip ilk tamamlanmış yüzme ve topluluk merkezi olma özelliğini taşıyor. Adını yerli Halkomelem dilinde “deniz samuru evi” anlamına gelen təməsew̓txʷ kelimesinden alan yapı, topluluk birliği, oyun, kapsayıcılık ve sürdürülebilirliği merkezine alan yeni bir kamusal yapı tipolojisi sunuyor.
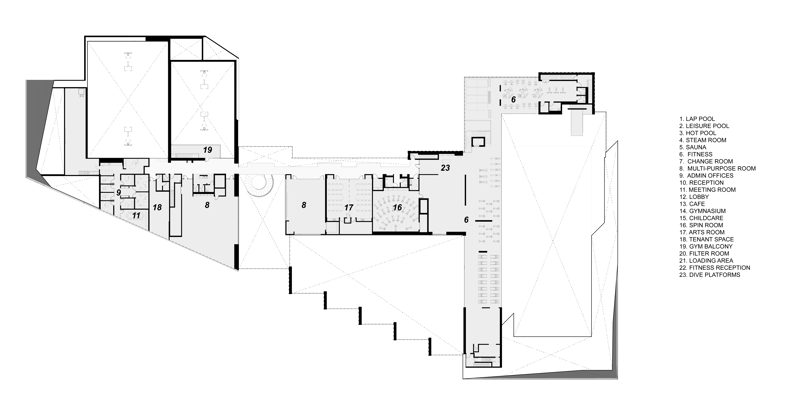
New Westminster kentinin en büyük kamusal yatırımı olan merkez, hem spor hem de sosyal etkileşim programlarını aynı çatı altında birleştiriyor. 10.684 m²’lik yapı; dört farklı havuz, spor salonları, fitness alanları, çok amaçlı salonlar, kreş, kafe, kamusal meydanlar ve yeşil alanlarıyla kentin sosyal merkezine dönüşüyor.
Tasarım sürecinde eski Kanada Oyunları Havuzu ve Centennial Community Centre yapılarının faaliyetlerinin kesintiye uğramaması önemli bir kriter olmuş. Bu nedenle yeni yapı, arazi eğimi boyunca uzanan ve eski yapıların yerine aşamalı olarak entegre edilen kademeli bir kütle olarak planlanmış.
Yapının doğu kanadında elli metrelik yarış havuzu, dalış platformları ve hareketli zemin sistemi bulunuyor. Bu alan, kuzeyden alınan dolaylı gün ışığıyla aydınlatılan dişbudak formundaki çatı altında yer alıyor. Eğik çatı formu hem enerji verimliliğini hem de kullanıcı konforunu artırıyor. Komşu kanatta yer alan eğlence havuzu, yirmi beş metrelik yüzme kulvarları, tembel nehir ve çocuk oyun alanlarını bir arada barındırıyor. Geniş açılır cam duvarlar, bu alanı dış mekan güneş terasına bağlayarak iç-dış sürekliliği sağlıyor.
İç mekanın kalbinde yer alan çift yükseklikli lobi, büyük bir topluluk holü olarak çalışıyor. Ahşap glulam kirişler, ışık bantları ve heykelsi spiral merdivenle tanımlanan bu alan, binanın doğu ve batı kanatlarını birbirine bağlıyor. Geniş cam yüzeyler, farklı etkinliklerin lobiye taşmasını sağlayarak iç mekanın kamusal doğasını güçlendiriyor.
Zemin katta yer alan South Plaza, yoğun bitkilendirme ve yağmur bahçeleriyle doğaya açılan törensel bir giriş oluştururken; North Plaza, spor salonu duvarlarının açılabildiği daha kentsel, etkinlik odaklı bir meydan olarak düzenlenmiş.
Enerji performansı açısından bina, tümüyle elektrikli sistemlerle çalışıyor. Çatıya yerleştirilen fotovoltaik paneller yıllık enerji gereksiniminin %5’ini karşılıyor. Ayrıca Kanada’da ilk kez kullanılan InBlue yerçekimiyle çalışan filtreleme sistemi, klor kullanımını azaltarak su ve hava kalitesini artırıyor.
Merkez, yalnızca çevresel sürdürülebilirliği değil, erişilebilirliği de önceliklendiriyor. Geniş dolaşım alanları, kontrastlı yönlendirme sistemleri, işitsel destek teknolojileri, engelli erişimli asansörler ve tüm cinsiyetlere açık soyunma alanlarıyla yapının tüm kullanıcılar için kapsayıcı olması sağlanmış. Bu özellikleriyle yapı, Rick Hansen Foundation Accessibility Gold sertifikası almaya hak kazanmıştır.
hcma’nın tasarımı, geçmişteki endüstriyel araziyi yeşil kamusal alana dönüştürürken, kent dokusunu yeniden doğaya bağlayan bir eşik oluşturuyor. Topoğrafyayla bütünleşen lineer kütle, peyzajın çizgilerini izleyen bir “kamusal çatı” gibi davranıyor; bu yönüyle yapı, hem yerel halk hem de ziyaretçiler için çağdaş bir buluşma noktası olarak kentin simgelerinden biri haline geliyor.
































©Grand Egyptian Museum