111 Praditmanutham
Künye
Mimari Tasarım
Stu/D/O Architects
Proje Yeri
Bangkok, Thailand
Tasarım Ekibi
Apichart Srirojanapinyo, Chanasit Cholasuek, Thanut Sakdanaraseth, Suwapat Rodprasert
Toplam İnşaat Alanı
20,000 m²
Tamamlanma Tarihi
2022
Fotoğraflar
DOF Sky|Ground
Bangkok’un merkezinde Stu/D/O Architects tarafından tasarlanan 111 Praditmanutham, sıradışı formuyla alışılagelmiş ofis ve çalışma alanlarına yenilik ve alternatif oluşturuyor.
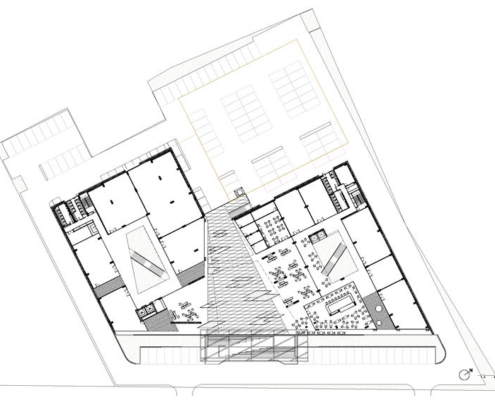
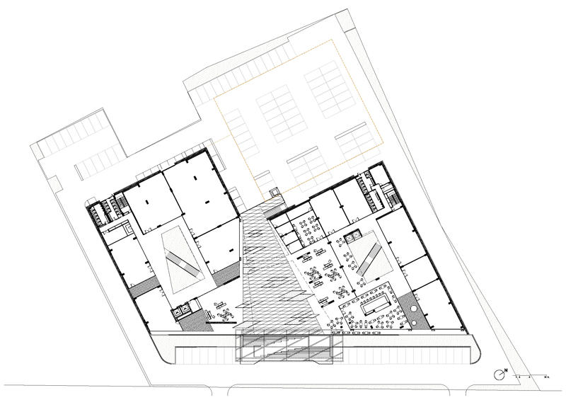
111 tasarımıyla, ofis tipolojisi içinde ilham, iş birliği, sağlık ve topluluk kavramlarını birleştiren ideal bir çalışma ortamı öneriyor. İnşaat yönetmelikleri ve imar kısıtlamalarına uygun olarak, yirmi bin metrekare alana sahip yapı, iki binaya bölünmüş ve iki kütle arasında geniş bir meydan bulunuyor. Bu kamusal ve çok işlevli toplanma alanı kütlenin kesilme şekli sayesinde gölge sağlayan yirmi metrelik konsol kütle ile korunuyor. Yeşil alanların, eğlence ve dinlenme alanlarının kısıtlı olduğu yoğun bir kentsel bağlamda, proje, kesik üçgen kütle üzerinde yeşil katmanlara sahip kademeli balkonlar, yarı açık teraslar içindeki yeşil alanlar ve merkezi atriyum ve lobi görevi de gören açık hava kamusal meydan içindeki peyzaj alanlarında doğayı ofis hayatına taşımak amaçlanmış. Kesik konsol kütle, bu büyük ortak alana gün boyu gölge sağlayarak, bu yaratıcı merkezin çeşitli kullanıcıları arasında etkileşimi teşvik etmek ve topluluk duygusunu güçlendirmek amacıyla tasarlanmış.
Esneklik, sürdürülebilirlik ve uygulanabilirlik, projenin üç ana odak noktasını oluşturuyor. Kiralanabilir alan, birden fazla birim tipine ayrılmış ve binalar genelinde çeşitli düzenlemelerle tahsis edilmiş. Her birim açık planlı tasarlanmış ve bu da esnek kullanım sağlıyor. Alan kalitesini artırmak için, iç avlular, çatı pencereleri, yeşil alanlar ve yarı açık teraslardan oluşan dinlenme alanları binalarla bütünleştirilmiş. Bu sayede, fonksiyonel alanlarda gün ışığından faydalanılabiliyor ve ortak alanlarda doğal havalandırma sağlanıyor. Kullanıcı deneyimi ve çalışma koşullarının en iyi seviyeye getirilmesi, projenin genel tasarımı ve kütlesinin yanı sıra iç mekan ve aydınlatma gibi unsurların dahil edilmesinde de itici güç olmuş. Bu sayede, çalışma alanında sağlık, iş birliği ve topluluk duygusu yaratan tutarlı bir alan ortaya çıkmış.









































