Üçgen CNC Fabrika ve Ofis Projesi
Künye
Mimari Tasarım
FIELDS
Proje Yeri
Dilovası, Kocaeli
Proje Ekibi
Eren Çıracı, Serdil Yıldırım, Şule Çakal
İşveren
Üçgen CNC
Statik Proje Danışmanı
BAÇ Mühendislik
Elektrik Projesi Danışmanı
VEGA
Mekanik Proje Danışmanı
EGM
Tamamlanma Tarihi
2025
Toplam İnşaat Alanı
4000 m²
Fotoğraflar
Egemen Karakaya
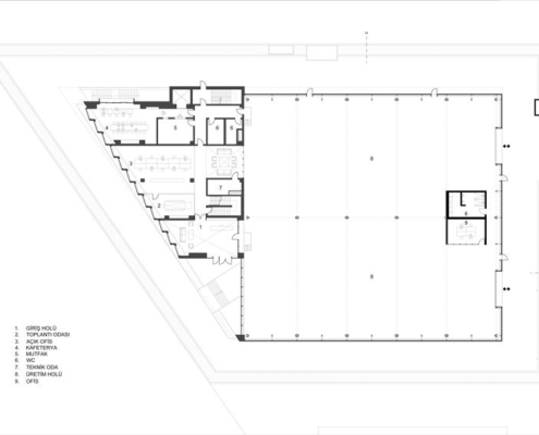
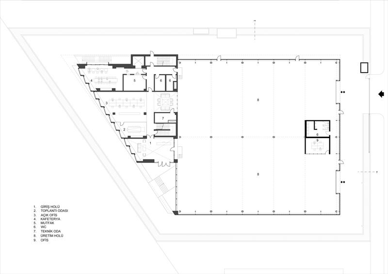
FIELDS tasarımı Üçgen CNC Fabrika ve Ofis, kısıtlı parsel koşullarına uyum sağlayan yerleşim kurgusu, üretim ve idari işlevleri tek bir kütlede bir araya getiren tasarım anlayışı, ışık kullanımı ve renk kodlarıyla öne çıkan bir endüstriyel yapı olarak tasarlanmış.
FIELDS tasarımı Üçgen CNC Fabrika ve Ofis projesi Dilovası’ndaki bir organize sanayi bölgesi (OSB) içerisinde yer alıyor. Proje alanının dik yamuk şekli ve araç girişinin tek cepheden olması vaziyet planı kararlarını ciddi anlamda sınırlandırmış. Dikdörtgen üretim holü OSB yolu cephesi tarafına konumlandırılmış. Parselin şeklinin dikte ettiği bu karar, üretim holüne en kısa yoldan araç girişi sağlamak konusunda avantaj sağlıyor. Çekme mesafeleri içerisinde üretim holünden geriye kalan alan idari birime ayrılmış. Üretim ve idari birimler iki farklı blok olarak ele alınmamış; yapı, ikisinin geometrik olarak bütünleştiği tek bir kütle olarak düşünülmüş.
Üçgen şeklindeki idari birimin dar köşesi yapının ana girişini ve odak noktasını tanımlıyor. Tamamen cam olarak tasarlanan üretim holünün cephesi giriş saçağının altına kadar yükseliyor. Bu sayede bina kullanıcıları ve diğer ziyaretçiler yapıyla karşılaştıkları ilk noktada üretim holünü görebiliyorlar. Kuzeye bakan cephe aynı zamanda üretim holünün gün boyu doğal ışık almasını ve çalışanların dışarıyı görebilmesini sağlıyor. İdari birimin testere cephesi ise akşamüstü batıdan gelen güneş ışığını keserken ofis alanlarının doğal ışıktan faydalanmasını mümkün hale getiriyor.
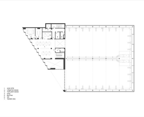
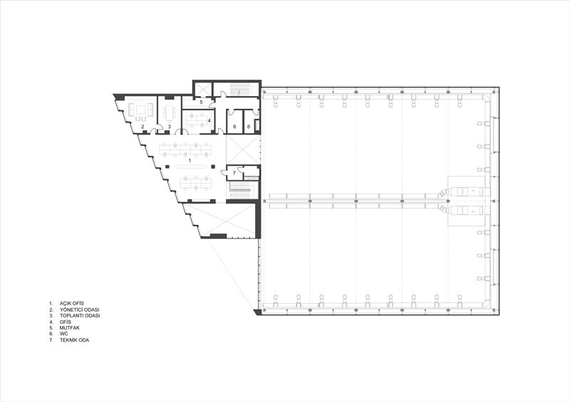
Tek bir kütle olarak ele alınan üretim bloğu ile idari blok, yapısal nedenlerle dilatasyonla ayrılmış iki farklı strüktür olarak tasarlanmış. Üretim holü tek katlı çelik bir yapı, idari blok çok katlı betonarme bir strüktür olarak tasarlanmış. İdari binanın bodrum katı teknik hacimleri, personel giyinme alanlarını ve depoları barındırırken üst katlar ofis alanı olarak düzenlenmiş. Zemin katta giriş holü ve açık ofislerle ilişkili oturma alanları, çift kat yüksekliğinde cam yüzeylerle üretime bakıyor. Bu görsel ilişkinin dışında idari blok üretime iki noktadan bağlanıyor. Giriş holüne ek olarak ofis bloğunun diğer ucundaki bir koridorla üretim alanı yapının tüm kullanıcılarının bir araya geldiği kafeteryaya bağlanıyor.
Yapı, üretim alanındaki proses boruları gibi farklı renklerle kodlandırılmış. Üretim holü gümüş gri sandviç panellerle, ofis bloğu beyaz alüminyum panellerle, yangın merdiveni ve idari binanın ana şaftını barındıran kütle ise sinyal sarısı alüminyum panellerle kaplanmış. Bu renklerin varyasyonları iç mekanlar ve mobilyalarda da kullanılmış, bu sayede tüm yapıda bütünleşik bir görünüm ve atmosfer sağlanması amaçlanmış.
























©Schran Images