Isabu Dokdo Müzesi
Künye
Proje Yeri
Samcheok, Gangwon-do, Güney Kore
Mimari Tasarım
Simplex Architecture
Tasarım Yürütücüleri
Chung Whan Park, Sanghun Song
Proje Ekibi
Yukyung Kim, On Sim, Eunseon Jung, Hyunwoo Lee, Seongwook Jeong, Jihee Bang
Yarışma Ekibi
Gyoung Tak Park, Namjin Lee, Sang Soo Lee
Peyzaj Mimarlığı
DSW Landscape Design & Construction Co., STUDIO201 Landscape Design & Consulting
Statik Proje
TheKujo Co.
Mekanik Proje
HANA Consulting Engineers Co., Ltd
Toplam İnşaat Alanı
1.263,05 m²
Fotoğraflar
Kyungsub Shin
Simplex Architecture tarafından tasarlanan Isabu Dokdo Müzesi, Samcheok’ta Yukhyangsan Dağı’nın jeolojik katmanlarını yeniden görünür kılan yerleşimi ve peyzajla kurduğu süreklilik üzerinden, tarihsel anlatıya dayanan mekansal bir deneyim noktası olarak kurgulanmış.
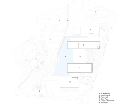
Simplex Architecture tarafından tasarlanan Isabu Dokdo Müzesi, Silla Generali Isabu’nun ve Dokdo’nun tarihini sergilemek üzere Samcheok’ta konumlanıyor. Müze, mimarlık ile peyzaj arasında dengeli bir ilişki kurma hedefiyle tasarlanmış. Proje alanı, Gangwon-do, Samcheok-si, Jeongna-dong’da yer alıyor. Alanın doğusunda Samcheok Limanı ile endüstri bölgesi, kuzeyinde ticaret alanları, kuzeybatısında ise konut dokusu bulunuyor. MS 512 yılında, Silla Kralı Jijeung döneminde, General Isabu’nun Usanguk’u fethetmek üzere denize açıldığı nokta burası olarak tanımlanıyor. Günümüzde Yukhyangsan Dağı olarak bilinen topoğrafya, Isabu’nun yola çıktığı dönemde bir ada niteliğindeyken zamanla kara parçasına dönüşmüş.
Proje kapsamında Yukhyangsan’ın alt kotları kazılarak alan eski kotuna yaklaştırılmış ve su ögesi eklenmiş. Yukhyang-ji adı verilen bu su yüzeyi, hem dağ ile ilişki kurmakta hem de geçmişteki ada imgesine gönderme yapıyor. Böylece tarihsel katmanları izleyen bir sergi rotası, yeniden açığa çıkarılan topoğrafya ile bütünleşerek Samcheok için yeni bir kültürel odak oluşturuyor.
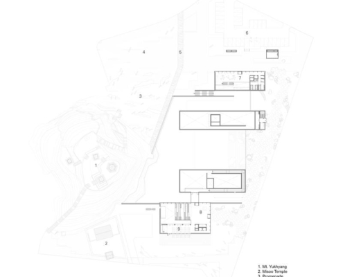
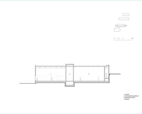
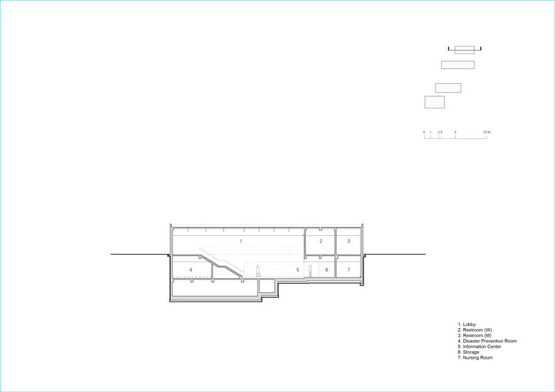
Müze dört ana bileşenden oluşuyor: turizm danışma merkezi, ulusal savunma anı salonu, Dokdo deneyim mekanı ve çok amaçlı topluluk mekanı. Bu dört bağımsız kütle, sergi organizasyonunu ve ziyaretçi dolaşımını tanımlarken, aynı zamanda akışkan bir mekansal kurgu oluşturuyor. Ayrık bölümlerden oluşan yapı, hem bütüncül bir sergi mekanı hem de bağımsız sergilere olanak tanıyan esnek bir sistem olarak çalışıyor.
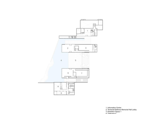
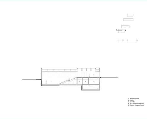
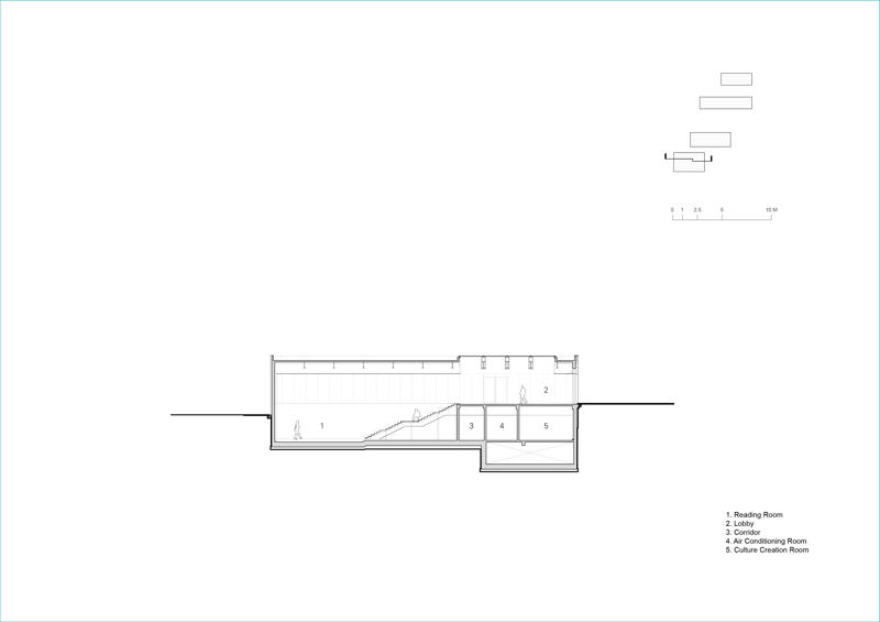
Ziyaretçi, önceden belirlenmiş tek yönlü bir rota yerine, bölümler arasında serbestçe hareket edebiliyor; iç mekan ile açık alan arasında geçiş yapabiliyor; sergiyi farklı noktalardan deneyimleyebiliyor ya da manzara eşliğinde dinlenebiliyor. Bölümler arasındaki açık alanlar, çevredeki doğal peyzajı çerçeveleyerek mimarlık ile doğa arasında süreklilik sağlıyor. Sergi deneyimi turizm danışma merkezinde başlıyor. Yol kotundan girilen üst katta kafe yer alıyor. Alt kotlara inildiğinde giriş lobisi ve bilgilendirme alanı bulunuyor. Buradan ulusal savunma anı salonuna geçişte bulunan moloz taş duvar Samcheokpojinseong Kalesi’nin tarihsel varlığına gönderme yapıyor. Açık merdivenler ve üst kotta yer alan patika, kalenin konumunu zeminde işaretleyerek tarihsel izi görünür kılıyor.
Açık alanlar, yapının peyzaj üzerinde baskın bir nesneye dönüşmemesi amacıyla tasarlanmış. Aynı zamanda potansiyel sergi alanları olarak kurgulanan bu mekanlar, deneyimi dış mekana taşıyor. İnşaat sürecinde Silla dönemine ait Samcheokpojinseong kalıntılarının ortaya çıkması, tasarımda revizyon gerektirmiş; Yukhyang-ji küçültülerek kalıntıları koruyacak biçimde yeniden düzenlenmiş. Bu müdahale, Yukhyangsan’ın alt kotlarının ilk tasarımda öngörülen açıklığını sınırlamış olsa da, alanın tarihsel katmanlarının korunmasını mümkün kılmış. Isabu Dokdo Müzesi, mimarlık ile peyzaj arasında kurduğu dengeli ilişki, tarihsel bağlamı topoğrafya üzerinden yeniden okuyan yaklaşımı ve esnek sergi kurgusuyla, Samcheok’ta kültürel sürekliliği mekansal bir anlatıya dönüşüyor.




















































©SAW Unite